Casas Houzz
Una casa 'vintage-chic' en Marbella con un bonito patio
La pareja propietaria ha encontrado en Houzz al estudio que ha reformado su peculiar chalé de los años 60 en Marbella.
Superponiendo objetos de viajes con puertas castellanas antiguas recuperadas de Andújar y una estética pop, esta casa rebosa personalidad (además de un bonito patio).
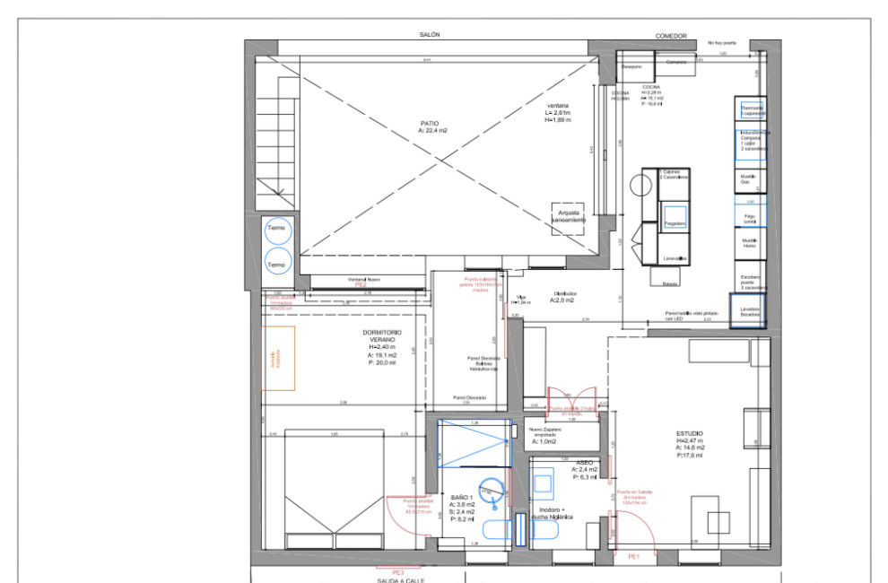
Los dueños, una pareja joven que acaban de ser padres, vivían en la casa y durante la pandemia decidieron que necesitaban renovarla. “El principal motivo de reformar la casa fue la necesidad de ganar en confort y comodidad”, comparte Mari Cruz Díaz, la propietaria, que encontró y contrató a la interiorista en Houzz. El chalé, de dos plantas, tiene una cocina abierta con isla, tres dormitorios, un despacho y un salón-comedor.
► Encuentra arquitectos bien valorados en la zona en la que vives
Los dueños, una pareja joven que acaban de ser padres, vivían en la casa y durante la pandemia decidieron que necesitaban renovarla. “El principal motivo de reformar la casa fue la necesidad de ganar en confort y comodidad”, comparte Mari Cruz Díaz, la propietaria, que encontró y contrató a la interiorista en Houzz. El chalé, de dos plantas, tiene una cocina abierta con isla, tres dormitorios, un despacho y un salón-comedor.
► Encuentra arquitectos bien valorados en la zona en la que vives
ANTES: se trata de una vivienda del año 1964 que necesitaba adaptarse a las necesidades actuales de sus dueños, pero sin sacrificar el encanto sesentero.
“Los dueños tenían las ideas claras, pero querían contar con una opinión de un profesional. Me gustan los clientes que participan del proceso y ponen en valor tus comentarios”, dice Navarro.
“Los dueños tenían las ideas claras, pero querían contar con una opinión de un profesional. Me gustan los clientes que participan del proceso y ponen en valor tus comentarios”, dice Navarro.
¿Necesitas un profesional para tu proyecto de reformas integrales?
Encuentra en Houzz al mejor profesional para tu proyecto
Encuentra en Houzz al mejor profesional para tu proyecto
DESPUÉS: abierta al patio: el corazón de la casa, la cocina es un espacio abierto que comunica con el salón-comedor y el estudio a través de la puerta de cristal y hierro. La planta baja se plantea como una casa-estudio con todos los espacios comunicados. “Lo que más me gusta es la cocina porque hemos ganado espacio y comodidad. Es un placer cocinar aquí y los desayunos son una maravilla gracias a las vistas”, dice la dueña.
La zona de fuegos combina inducción con gas. “El mueble de la bombona tiene su gemelo para guardar condimentos de cocina”, explica la profesional. Los muebles tienen un acabado en blanco sedoso, antiarañazos y antimanchas.
La zona de fuegos combina inducción con gas. “El mueble de la bombona tiene su gemelo para guardar condimentos de cocina”, explica la profesional. Los muebles tienen un acabado en blanco sedoso, antiarañazos y antimanchas.
“El cliente valora la paz de su hogar. La vivienda como entorno seguro, de reflexión, para disfrutar de la vida familiar, cocinar, leer, escuchar música, cuidar las plantas…”, dice Navarro.
En esta vivienda hubo que impermeabilizar bien por humedades de filtración del terreno. Además, tiene muchas ventanas. “Esto hizo que la reforma fuera más cara. Sin embargo, no era necesario un sistema de calefacción, pero sí un split de aire acondicionado en el salón”.
En esta vivienda hubo que impermeabilizar bien por humedades de filtración del terreno. Además, tiene muchas ventanas. “Esto hizo que la reforma fuera más cara. Sin embargo, no era necesario un sistema de calefacción, pero sí un split de aire acondicionado en el salón”.
A la vivienda se accede a un espacio que hace las veces de estudio abierto con aseo. Por toda la casa se ven elementos que contrastan con la madera, en forma de espejo o piezas de metal, que además aportan brillo a espacios de base neutra.
¿Cómo se consigue que una casa de estética vintage tenga un aire contemporáneo? “Esta casa es contemporánea por la iluminación, los espacios abiertos y concatenados entre sí, los materiales en gran formato y el color, que se aplica sutilmente para que los espacios sigan pareciendo amplios”, explica la profesional.
Este es el aseo de cortesía, de aire divertido gracias al papel pintado The acrobats, de Mind the Gap. Cuenta con un espejo redondo retroiluminado, inodoro suspendido y lavabo con dos cajones para almacenaje.
“Los tres baños son muy diferentes entre sí, aportan dinamismo a una vivienda de muros gruesos y huecos no demasiado grandes. Cada baño tiene una utilidad muy diferenciada. El aseo de cortesía es divertido y desenfadado; el del cuarto de invitados es sofisticado y elegante, con el lavabo de pedestal en mármol y la grifería en negro. El baño del dormitorio principal, al estar abierto al dormitorio y al vestidor, es muy fresco. En la ducha, por ejemplo, hay un alicatado vitrificado turquesa”.
“Los tres baños son muy diferentes entre sí, aportan dinamismo a una vivienda de muros gruesos y huecos no demasiado grandes. Cada baño tiene una utilidad muy diferenciada. El aseo de cortesía es divertido y desenfadado; el del cuarto de invitados es sofisticado y elegante, con el lavabo de pedestal en mármol y la grifería en negro. El baño del dormitorio principal, al estar abierto al dormitorio y al vestidor, es muy fresco. En la ducha, por ejemplo, hay un alicatado vitrificado turquesa”.
“Los dueños querían mantener el estilo de la urbanización, con toques rústicos y mediterráneos, los patios, la buganvilla… Pero también querían apostar por el color y elementos más pop o más transgresores. Para mí, el estilo de la casa es bastante kitsch”, dice la profesional.
Casas Houzz: Un piso en Dinamarca de decoración ‘kitsch’
Casas Houzz: Un piso en Dinamarca de decoración ‘kitsch’
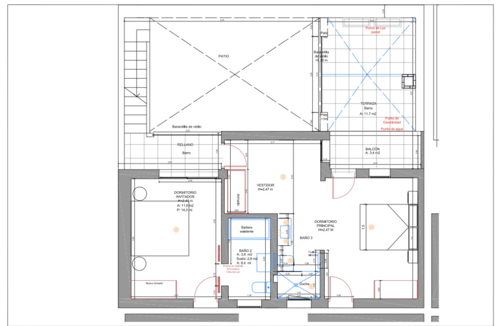
Plano de la planta superior, con dos dormitorios y acceso a la cubierta que se ha transformado en solárium.
En la planta primera el dormitorio principal cuenta con baño en suite y vestidor.
“Los materiales más destacados de la reforma son la madera, que aparece en cada estancia a través de las bonitas puertas recuperadas, y el porcelánico gris de Keraben, modelo INARI, del suelo. Quisimos unificar espacios utilizando el mismo suelo en toda la casa; incluso en baños y cocina”, cuenta Navarro.
“Los materiales más destacados de la reforma son la madera, que aparece en cada estancia a través de las bonitas puertas recuperadas, y el porcelánico gris de Keraben, modelo INARI, del suelo. Quisimos unificar espacios utilizando el mismo suelo en toda la casa; incluso en baños y cocina”, cuenta Navarro.
“Los clientes tenían mucho mobiliario y solo añadimos elementos distintivos como el vestidor de espejo o el armario azul añil”.
Este es el cuarto de baño del dormitorio principal.
“Una parte importante de este proyecto ha consistido en integrar los exteriores en el interior. Se amplían esos huecos al patio y se mantienen los vanos que dan a fachadas exteriores, que deben mantener armonía con la urbanización”, cuenta Navarro.
Un ejemplo de estas soluciones está en esta terraza de la imagen, donde se ha sustituido la barandilla original por una de vidrio. La cubierta se usa ahora como solárium porque “el patio que tienen es muy bonito pero no tan soleado”.
El tercer dormitorio también cuenta con acceso directo al exterior.
► Encuentra inspiración entre miles de fotos de casas de los profesionales de Houzz
¿Y A TI?
¿Qué te parece esta casa en Marbella?
► Encuentra inspiración entre miles de fotos de casas de los profesionales de Houzz
¿Y A TI?
¿Qué te parece esta casa en Marbella?




















Quién vive aquí: Mari Cruz Díaz, su pareja y un hijo pequeño
Situación: Marbella, Málaga
Superficie: 145 metros cuadrados y 60 entre patio y terrazas
Proyecto: Rocío Navarro
Presupuesto: 100.000 € (IVA no incluido)
En la imagen superior se puede ver la nueva cocina, abierta y comunicada con el comedor-salón y con el patio. Destaca la encimera porcelánica con veta imitando al mármol, además de una campana de pared en color cobre, de la firma Elica, junto a una bonita decoración hecha con listones de madera.
“La cocina es mi espacio preferido de la casa. ¡Me encanta!”, dice Rocío Navarro, responsable del proyecto. La zona de lavado mira al ventanal: el fregadero y el lavavajillas integrado se orientan hacia el bonito patio. “El mueble de desayuno está entre mis favoritos”.