Antes y después
¡Mis padres han renovado su dormitorio! 5 lecciones útiles
Una redactora de Houzz Estados Unidos cuenta cómo ha vivido la reforma del dormitorio de sus padres y qué ha aprendido.
De pequeña, la habitación de mis padres era… tan elegante. Era la parte ‘nueva’ –por nuevo, entiéndase aquí una ampliación que hicimos hace ya más de 30 años, en 1988– de la casa de estilo tudor de 1920 en la que vivíamos en los suburbios de Chicago. El dormitorio era enorme: con un techo abovedado, paredes verdes y un baño en suite que mi madre me dejaba compartir con ella. Frente a las glamurosas bombillas del vestidor, tipo años dorados de Hollywood, me lavé los dientes y me peiné durante mi niñez y adolescencia. Mi padre prefería el baño de mis hermanos, al final del pasillo, por la mayor presión con la que salía el agua de la ducha.
Lección 1: Un profesional sabe ver cosas que quizá tú no hayas pensado
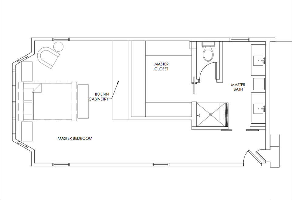
ANTES: finalmente, mi madre contactó con Coe a través de Houzz, pero antes había estado devanándose los sesos –y devanándoselos a amigos y familiares– para ver cómo podría encajar un baño y un armario más grandes en la habitación.
Mis padres habían superado lo del tocador para ella y el lavabo separado para él y para ella. Además, tirar la pared no parecía factible porque la chimenea, que se ve en el plano, estaba justo detrás del baño.
Sin embargo, cuando Coe se pasó por casa en la consulta inicial vio de inmediato el potencial del espacio. La habitación, con más de 7 metros de largo, contaba con mucho espacio y la chimenea –apenas usada– podía taparse. “El problema era que yo no entendía lo que iba a pasar con esa chimenea –dice mi madre. Y en ningún caso se me ocurrió que pudiera arreglarse”.
► ¡Sorpréndete con el radical cambio que han sufrido los dos baños de una misma casa!
ANTES: finalmente, mi madre contactó con Coe a través de Houzz, pero antes había estado devanándose los sesos –y devanándoselos a amigos y familiares– para ver cómo podría encajar un baño y un armario más grandes en la habitación.
Mis padres habían superado lo del tocador para ella y el lavabo separado para él y para ella. Además, tirar la pared no parecía factible porque la chimenea, que se ve en el plano, estaba justo detrás del baño.
Sin embargo, cuando Coe se pasó por casa en la consulta inicial vio de inmediato el potencial del espacio. La habitación, con más de 7 metros de largo, contaba con mucho espacio y la chimenea –apenas usada– podía taparse. “El problema era que yo no entendía lo que iba a pasar con esa chimenea –dice mi madre. Y en ningún caso se me ocurrió que pudiera arreglarse”.
► ¡Sorpréndete con el radical cambio que han sufrido los dos baños de una misma casa!
ANTES: Coe cree que los clientes a menudo se estancan con lo que ellos presumen que son las limitaciones de su casa, pero los profesionales del diseño se ganan la vida reimaginando espacios y siempre tienen una nueva perspectiva.
“Es bastante común que un cliente diga algo así como ‘no, yo creo que eso simplemente no podemos hacerlo’ –dice Coe. En esos casos, mi respuesta siempre es la misma: cuéntame tu sueño y déjame decirte qué es posible y qué no porque nunca se sabe…”.
En el caso de mis padres, un arquitecto técnico llegó a la conclusión de que la chimenea –arriba a la derecha en el plano superior– no se podía quitar (tal y como Coe hubiera querido), pero sí tapar. Ahora está detrás de la pared del nuevo vestidor del cuarto de mis padres.
“Es bastante común que un cliente diga algo así como ‘no, yo creo que eso simplemente no podemos hacerlo’ –dice Coe. En esos casos, mi respuesta siempre es la misma: cuéntame tu sueño y déjame decirte qué es posible y qué no porque nunca se sabe…”.
En el caso de mis padres, un arquitecto técnico llegó a la conclusión de que la chimenea –arriba a la derecha en el plano superior– no se podía quitar (tal y como Coe hubiera querido), pero sí tapar. Ahora está detrás de la pared del nuevo vestidor del cuarto de mis padres.
El resto del espacio podía aprovecharse mejor. Coe ‘robó’ aproximadamente unos 3 metros a la habitación original para dar más espacio al baño principal y diseñar un generoso vestidor que terminó cerrando con unas bonitas puertas correderas de madera (que se pueden ver en una imagen posterior) como las de los típicos graneros americanos.
En el lado del dormitorio de la nueva pared-vestidor, un armario blanco empotrado con puertas de espejo proporciona el espacio de almacenamiento que mis padres necesitaban sin dar sensación de pesadez visual. Ah…, y ¡fuera con la pintura verde! y los anticuados faldones de tela de las ventanas en favor de un tono beige y blanco que ha aligerado y alegrado el espacio. “Supe de inmediato que si conseguíamos plasmar lo que teníamos en mente, la transformación iba a ser increíble”, dice Coe.
ANTES: la orientación del espacio también le parecía anticuada a la interiorista. La cama estaba colocada contra la pared lateral, dejando la zona cerca de los ventanales que se puede ver en la foto superior libre para colocar –diría más bien acumular– muebles sin ton ni son… ¡si hasta recuerdo que teníamos una máquina elíptica!
En la habitación remodelada, las ventanas enmarcan la cama nueva, “convirtiéndola en el punto focal del espacio”, cuenta Coe.
De nuevo, una sencilla solución que mi madre no había tenido en cuenta marcó la diferencia. La zona donde está la cama, inundada ahora de luz, es una de las cosas que más le gusta del nuevo dormitorio. ¡Las ventanas son tan bonitas! Siempre han estado ahí y jamás las he apreciado tanto como ahora”, confiesa mi madre.
► Encuentra interioristas y decoradores en Houzz para tu próxima reforma
Es extraño mirar las fotos del ‘antes’. De alguna forma, la niña que sigo llevando dentro sigue viendo esas paredes verdes y la chimenea como elementos elegantes, muy de padre, pero tanto ellos como yo estamos totalmente de acuerdo que el cambio era necesario y que ha tenido un impacto mucho mayor de lo que nos imaginábamos.
“Sabes…, ha sido casi como si Sarah nos hubiera montado en una máquina del tiempo que nos ha llevado de los 80 y de las hombreras y el pelo permanente a un futuro lujoso que no teníamos antes”, me confiesa mi madre.
De nuevo, una sencilla solución que mi madre no había tenido en cuenta marcó la diferencia. La zona donde está la cama, inundada ahora de luz, es una de las cosas que más le gusta del nuevo dormitorio. ¡Las ventanas son tan bonitas! Siempre han estado ahí y jamás las he apreciado tanto como ahora”, confiesa mi madre.
► Encuentra interioristas y decoradores en Houzz para tu próxima reforma
Es extraño mirar las fotos del ‘antes’. De alguna forma, la niña que sigo llevando dentro sigue viendo esas paredes verdes y la chimenea como elementos elegantes, muy de padre, pero tanto ellos como yo estamos totalmente de acuerdo que el cambio era necesario y que ha tenido un impacto mucho mayor de lo que nos imaginábamos.
“Sabes…, ha sido casi como si Sarah nos hubiera montado en una máquina del tiempo que nos ha llevado de los 80 y de las hombreras y el pelo permanente a un futuro lujoso que no teníamos antes”, me confiesa mi madre.
Lección 2: Se puede reformar respetando el encanto de lo antiguo
Aunque la casa de mis padres es de la década de 1920, la suite principal y la habitación familiar que hay justo debajo se añadieron posteriormente, por lo que las habitaciones no tenían tantos detalles arquitectónicos interesantes como sí había en el resto de la casa. Coe quería cambiar ese aspecto.
Así, ha añadido unas vigas de madera en la nueva habitación (ver una foto anterior) que se hacen eco de las vigas de madera originales del que era el dormitorio principal antes de la ampliación (y que se convirtió en mi habitación). El baño y el armario tienen las típicas puertas de granero de madera reciclada hechas a medida, con pomos de cristal de estilo vintage y los embellecedores de latón que se pueden ver en la foto.
Aunque la casa de mis padres es de la década de 1920, la suite principal y la habitación familiar que hay justo debajo se añadieron posteriormente, por lo que las habitaciones no tenían tantos detalles arquitectónicos interesantes como sí había en el resto de la casa. Coe quería cambiar ese aspecto.
Así, ha añadido unas vigas de madera en la nueva habitación (ver una foto anterior) que se hacen eco de las vigas de madera originales del que era el dormitorio principal antes de la ampliación (y que se convirtió en mi habitación). El baño y el armario tienen las típicas puertas de granero de madera reciclada hechas a medida, con pomos de cristal de estilo vintage y los embellecedores de latón que se pueden ver en la foto.
ANTES: el armario original, a punto de explotar, ha desaparecido y su espacio es ahora para el baño; mucho más grande. “Solo han pasado un par de meses desde la reforma y me sigo sorprendiendo. ¡Dios mío!, ¿cómo podíamos tener un armario tan pequeño?”, dice mi madre.
El nuevo baño es abuhardillado. Destacan los bonitos espejos de latón envejecido, muy de estilo marroquí, que hay sobre cada lavabo. El suelo de mármol es muy elegante, dice Coe. La grifería de níquel pulido de aire vintage, las lámparas de bronce, los detalles de la puerta del baño…, todo busca hacerse eco de otros detalles decorativos repartidos por la casa.
Este es el nuevo vestidor a medida, accesible desde del baño.
Lección 3: El diseño debe responder a nuestra forma de vida
ANTES: además de para diseñar un espacio más elegante, una reforma debe servir para responder a nuestras necesidades y estilo de vida. Coe y mis padres hablaron específicamente sobre qué no les gustaba de la anterior disposición. Tener espacio de almacenamiento para la ropa y todos los recuerdos resultó ser una prioridad.
► ¿Buscas inspiración e ideas concretas para tu próxima reforma? Descubre la sección ‘Dormitorio’ de la Revista Houzz España
ANTES: además de para diseñar un espacio más elegante, una reforma debe servir para responder a nuestras necesidades y estilo de vida. Coe y mis padres hablaron específicamente sobre qué no les gustaba de la anterior disposición. Tener espacio de almacenamiento para la ropa y todos los recuerdos resultó ser una prioridad.
► ¿Buscas inspiración e ideas concretas para tu próxima reforma? Descubre la sección ‘Dormitorio’ de la Revista Houzz España
La zona entre ambos lavabos fue un punto de conflicto entre mis padres. Una torre de toallas no les gustaba y las estanterías abiertas habrían vuelto a invitar a recuperar antiguos hábitos de desorden. Un banco de madera hecho a medida, y que de alguna forma une ambos lavabos, resolvió el problema y añadió un punto de calidez, además de combinar bien con las puertas de madera y las vigas del techo de la habitación.
ANTES: después de marcharme a la universidad, mi madre era la única que usaba el baño de su habitación: un lugar algo lúgubre… por no hablar de la patética presión del agua. La bañera, como la chimenea, rara vez se usaba. Como el baño de mis hermanos ya tenía una bañera, mis padres han decidido que perder esa bañera no iba a ser un gran problema en términos revalorización de la casa.
“Siendo prácticos, y sopesando las diferentes opciones, parecía claro que hacer un mejor uso del espacio era más importante que contar con una chimenea o una bañera”, reconoce mi madre.
La nueva cabina de ducha con azulejos tipo metro en las paredes y suelo porcelánico gris es maravillosa. Coe había planeado instalar un cabezal de ducha tipo lluvia, pero ahí mi padre sí que tuvo voz y voto y le dijo claramente a mi madre que después de años de tener que usar el baño de los chicos en el pasillo, era imprescindible un cabezal de ducha con buena presión. Coe asumió la petición encantada. “Por mi parte, he probado el nuevo y desde luego la presión está asegurada”, dice.
“Tengo muy claro que lo importante que conseguir un diseño a medida de cada cliente –continúa Coe. Y sin duda es fundamental que un cliente sea preciso a la hora de comunicar lo que le gusta e interesa para que el profesional consiga llevar a cabo sus deseos”.
La nueva cabina de ducha con azulejos tipo metro en las paredes y suelo porcelánico gris es maravillosa. Coe había planeado instalar un cabezal de ducha tipo lluvia, pero ahí mi padre sí que tuvo voz y voto y le dijo claramente a mi madre que después de años de tener que usar el baño de los chicos en el pasillo, era imprescindible un cabezal de ducha con buena presión. Coe asumió la petición encantada. “Por mi parte, he probado el nuevo y desde luego la presión está asegurada”, dice.
“Tengo muy claro que lo importante que conseguir un diseño a medida de cada cliente –continúa Coe. Y sin duda es fundamental que un cliente sea preciso a la hora de comunicar lo que le gusta e interesa para que el profesional consiga llevar a cabo sus deseos”.
En el dormitorio, el armario a medida permite que el televisor quede escondido. Los cajones y armarios tienen la suficiente profundidad y espacio para la ropa de mi padre –Coe se dio cuenta de que habitualmente mi padre se vestía en la habitación y no junto al armario.
“A veces, cuando nos habituamos a ciertas rutinas no es fácil cambiar de un día para otro. Por eso, yo a veces intento ver qué puedo mantener de esos hábitos de los clientes. Así, el diseño del armario le da a tu padre un amplio espacio para guardar la ropa en la propia habitación”, cuenta Coe.
Estudiamos la posibilidad de poner frentes de vidrio en las puertas, pero el espejo era mucho mejor en cuanto a mantenimiento y para tener todas las cosas ordenadas y escondidas al tiempo. “El espejo aporta la sensación de más luz, de espacio. Además, le dimos una pátina envejecida para hacernos eco de la solera que tiene la casa”, dice Coe.
Pero sí hubo que renunciar a algo. Mi padre, al que le gusta hacer ejercicio, quería que la máquina elíptica se quedara en el dormitorio, pero Coe logró convencerlo de lo contrario. Con tres hijos que ya no viven en casa y otras tantas habitaciones vacías, ¿por qué no escoger una de ellas para hacer un gimnasio en casa? Finalmente, se decantaron por mi antigua habitación: un sacrificio que he asumido gustosa viendo cómo ha quedado la habitación de mis padres con el nuevo diseño.
“A veces, cuando nos habituamos a ciertas rutinas no es fácil cambiar de un día para otro. Por eso, yo a veces intento ver qué puedo mantener de esos hábitos de los clientes. Así, el diseño del armario le da a tu padre un amplio espacio para guardar la ropa en la propia habitación”, cuenta Coe.
Estudiamos la posibilidad de poner frentes de vidrio en las puertas, pero el espejo era mucho mejor en cuanto a mantenimiento y para tener todas las cosas ordenadas y escondidas al tiempo. “El espejo aporta la sensación de más luz, de espacio. Además, le dimos una pátina envejecida para hacernos eco de la solera que tiene la casa”, dice Coe.
Pero sí hubo que renunciar a algo. Mi padre, al que le gusta hacer ejercicio, quería que la máquina elíptica se quedara en el dormitorio, pero Coe logró convencerlo de lo contrario. Con tres hijos que ya no viven en casa y otras tantas habitaciones vacías, ¿por qué no escoger una de ellas para hacer un gimnasio en casa? Finalmente, se decantaron por mi antigua habitación: un sacrificio que he asumido gustosa viendo cómo ha quedado la habitación de mis padres con el nuevo diseño.
Lección 4: La elegancia no tiene por que ser sosa
Coe incorporó muebles de estética minimal, sencillos, y una paleta de colores neutros para crear un ambiente tranquilo y sereno que ella y mi madre habían acordado en su intercambio de álbumes de ideas durante todo el proceso de reforma. Pero Coe también se aseguró de aplicar una variedad de texturas y detalles sentimentales para que las habitaciones tuvieran un toque acogedor y cálido.
“Ahora, el dormitorio parece el de un hotel de lujo o un spa. Me encanta, pero además hay muchos toques personales y cosas que aprecio y eso también me gusta”, dice mi madre.
Coe incorporó muebles de estética minimal, sencillos, y una paleta de colores neutros para crear un ambiente tranquilo y sereno que ella y mi madre habían acordado en su intercambio de álbumes de ideas durante todo el proceso de reforma. Pero Coe también se aseguró de aplicar una variedad de texturas y detalles sentimentales para que las habitaciones tuvieran un toque acogedor y cálido.
“Ahora, el dormitorio parece el de un hotel de lujo o un spa. Me encanta, pero además hay muchos toques personales y cosas que aprecio y eso también me gusta”, dice mi madre.
Donde más se aprecian esos toques personales personales a los que alude mi madre es en la galería de fotos junto al baño. A mi madre le encantan las fotos de familia, pero a Coe le cómo afectaría al estilo de la habitación. En todo caso, Coe y su equipo han ampliado el pasillo han hecho de esa pared un lugar protagonista del diseño.
Coe, enmarcó una selección de las fotos y recuerdos favoritos de mis padres, incluido un ‘contrato de beso, verdad o atrevimiento’ que hicieron y firmaron cuando mi madre solo tenía 15 años y mi padre, 17. El documento, hoy amarillento, está ahora en el centro mismo de la galería de fotos.
“Creo que ella me pidió siete fotos y le di 14”, dice mi madre, pero, de nuevo, Coe supo qué hacer con todas ellas. “Estos recuerdos son sencillamente joyas. Si se hace el esfuerzo de incluirlas el espacio pasa de ser un lugar bonito sin más a un espacio propio, con alma”, cuenta la profesional.
Coe, enmarcó una selección de las fotos y recuerdos favoritos de mis padres, incluido un ‘contrato de beso, verdad o atrevimiento’ que hicieron y firmaron cuando mi madre solo tenía 15 años y mi padre, 17. El documento, hoy amarillento, está ahora en el centro mismo de la galería de fotos.
“Creo que ella me pidió siete fotos y le di 14”, dice mi madre, pero, de nuevo, Coe supo qué hacer con todas ellas. “Estos recuerdos son sencillamente joyas. Si se hace el esfuerzo de incluirlas el espacio pasa de ser un lugar bonito sin más a un espacio propio, con alma”, cuenta la profesional.
Lección 5: Un diseño más funcional puede hacer que nuestra vida también cambie y sea más organizada
Meses después de terminada la reforma, mi madre está feliz.No solo estéticamente el cuarto está mejor, sino que también ha mejorado la forma en que mis padres viven y disfrutan del espacio. Mi madre tiene ahora sus joyas a la vista y ordenadas en lugar de escondidas y enmarañadas en un cajón. Cada tipo de prenda tiene su cajón y mi padre usa ahora una barra especial en el nuevo armario para colgar cada noche todo lo que se pondrá la mañana siguiente.
“El baño está limpio, el armario está limpio, la cama hecha a diario”, dice mi madre. “Nuestra habitación no estaba tan ordenada y limpia antes porque no tenía la motivación para hacerlo. Ahora sí, y eso es algo que le debemos a Sarah”.
“A menudo, no cuidamos nuestro dormitorio como deberíamos. Me refiero a que es el lugar en el que descansamos al final del día; lo primero que veos al despertar y deberían ser un espacio de retiro y relax, pero generalmente es el espacio donde acumulamos cosas y así pasaba antes aquí. No lo habían tocado en años. Había de todo, incluso una elíptica, pero ahora cuando entras está despejado y resulta visualmente refrescante”, cuenta Coe.
Más secciones de la Revista Houzz España…
Casas Houzz | Visita privada | Baño | Exterior | Casas singulares | Arquitectura | Reformas| Diseño | Decoración
¿Y TÚ?
¿Has reformado tu dormitorio? Cuéntanos tu experiencia. Seguro que a muchos usuarios también les sirve.
Meses después de terminada la reforma, mi madre está feliz.No solo estéticamente el cuarto está mejor, sino que también ha mejorado la forma en que mis padres viven y disfrutan del espacio. Mi madre tiene ahora sus joyas a la vista y ordenadas en lugar de escondidas y enmarañadas en un cajón. Cada tipo de prenda tiene su cajón y mi padre usa ahora una barra especial en el nuevo armario para colgar cada noche todo lo que se pondrá la mañana siguiente.
“El baño está limpio, el armario está limpio, la cama hecha a diario”, dice mi madre. “Nuestra habitación no estaba tan ordenada y limpia antes porque no tenía la motivación para hacerlo. Ahora sí, y eso es algo que le debemos a Sarah”.
“A menudo, no cuidamos nuestro dormitorio como deberíamos. Me refiero a que es el lugar en el que descansamos al final del día; lo primero que veos al despertar y deberían ser un espacio de retiro y relax, pero generalmente es el espacio donde acumulamos cosas y así pasaba antes aquí. No lo habían tocado en años. Había de todo, incluso una elíptica, pero ahora cuando entras está despejado y resulta visualmente refrescante”, cuenta Coe.
Más secciones de la Revista Houzz España…
Casas Houzz | Visita privada | Baño | Exterior | Casas singulares | Arquitectura | Reformas| Diseño | Decoración
¿Y TÚ?
¿Has reformado tu dormitorio? Cuéntanos tu experiencia. Seguro que a muchos usuarios también les sirve.



























En fin, que tras el shock y acordándome de las muchas llamadas y álbumes de ideas de Houzz que mi madre y yo habíamos ido compartido durante la reforma, me decidí a entrevistar a la interiorista por la que mis padres se habían decidido: Sarah Coe, de Sarah Coe Design LLC, y a mi madre, Candy Purdom, para saber (y contar) todo sobre esta reforma.