Casas del mundo
En Melbourne, una casa victoriana recupera todo su esplendor
Esta casa protegida, que estaba algo anticuada, ha pasado por una ambiciosa reforma integral.
Ennis Lea es una vivienda catalogada como patrimonio en Hawthorn, Victoria (Australia). Fue construida en 1896 y lleva en manos de sus propietarios más de 25 años como casa familiar. Con sus hijos ya adultos, la casa se había quedado algo antigua, por lo que la pareja sintió que era el momento adecuado para afrontar una reforma. El objetivo era que las siguientes generaciones de la familia disfrutaran de una casa más moderna y flexible durante los próximos años. La arquitecta Sarah Bryant, directora de Bryant Alsop Architects, se hizo cargo de la reforma para darle una estética más contemporánea.
► Encuentra arquitectos bien valorados en la zona en la que vives
► Encuentra arquitectos bien valorados en la zona en la que vives
Esta antigua casa victoriana ha sido la casa familiar de los propietarios durante 25 años. Ahora que sus hijos se han independizado, los dueños querían actualizar el interior para tener una casa más moderna, espaciosa, con más luz y también un jardín más amplio. Su objetivo era convertir la vivienda en un espacio más acogedor y con un salón más actual. También pidieron incorporar otro dormitorio y un baño más.
¿Necesitas un profesional para tu proyecto de diseño arquitectónico?
Encuentra en Houzz al mejor profesional para tu proyecto
Encuentra en Houzz al mejor profesional para tu proyecto
Después de restaurar la fachada, la arquitecta se centró en la parte trasera de la casa. Se ha sustituido una ampliación que había en la parte de atrás (construida en 1980) por otra más nueva y moderna que alberga tres dormitorios y un baño (en el segundo piso), además de una cocina con office y salón (en la planta de abajo).
“Desde el principio, vi que había que sacar partido al entorno verde y del parque que rodea la casa para mejorar el jardín”, cuenta la arquitecta.
“Desde el principio, vi que había que sacar partido al entorno verde y del parque que rodea la casa para mejorar el jardín”, cuenta la arquitecta.
ANTES: Imagen de la parte trasera de la casa antes de la reforma. “Lo importante era integrar perfectamente la nueva extensión a lo largo del edificio victoriano original, manteniendo a la vez su carácter más moderno y contemporáneo”, asegura.
DESPUÉS: “La nueva extensión es original y divertida. Tiene tejados a dos aguas, como la casa antigua. El revestimiento del tejado remite a los colores de la vegetación de la zona. Las tres habitaciones en el ático están a la altura de las copas de los árboles”, explica la arquitecta.
La profesional cuenta que la reforma de la casa original es más conservadora y austera. “Se ha empleado el color gris goma en las zonas exteriores, como en asientos y mesas. Las zonas de jardín se han ampliado con la eliminación de la piscina y además dos patios adicionales conectan la parte trasera con el exterior”, explica la arquitecta.
► Encuentra inspiración entre miles de fotos de casas en Houzz
La profesional cuenta que la reforma de la casa original es más conservadora y austera. “Se ha empleado el color gris goma en las zonas exteriores, como en asientos y mesas. Las zonas de jardín se han ampliado con la eliminación de la piscina y además dos patios adicionales conectan la parte trasera con el exterior”, explica la arquitecta.
► Encuentra inspiración entre miles de fotos de casas en Houzz
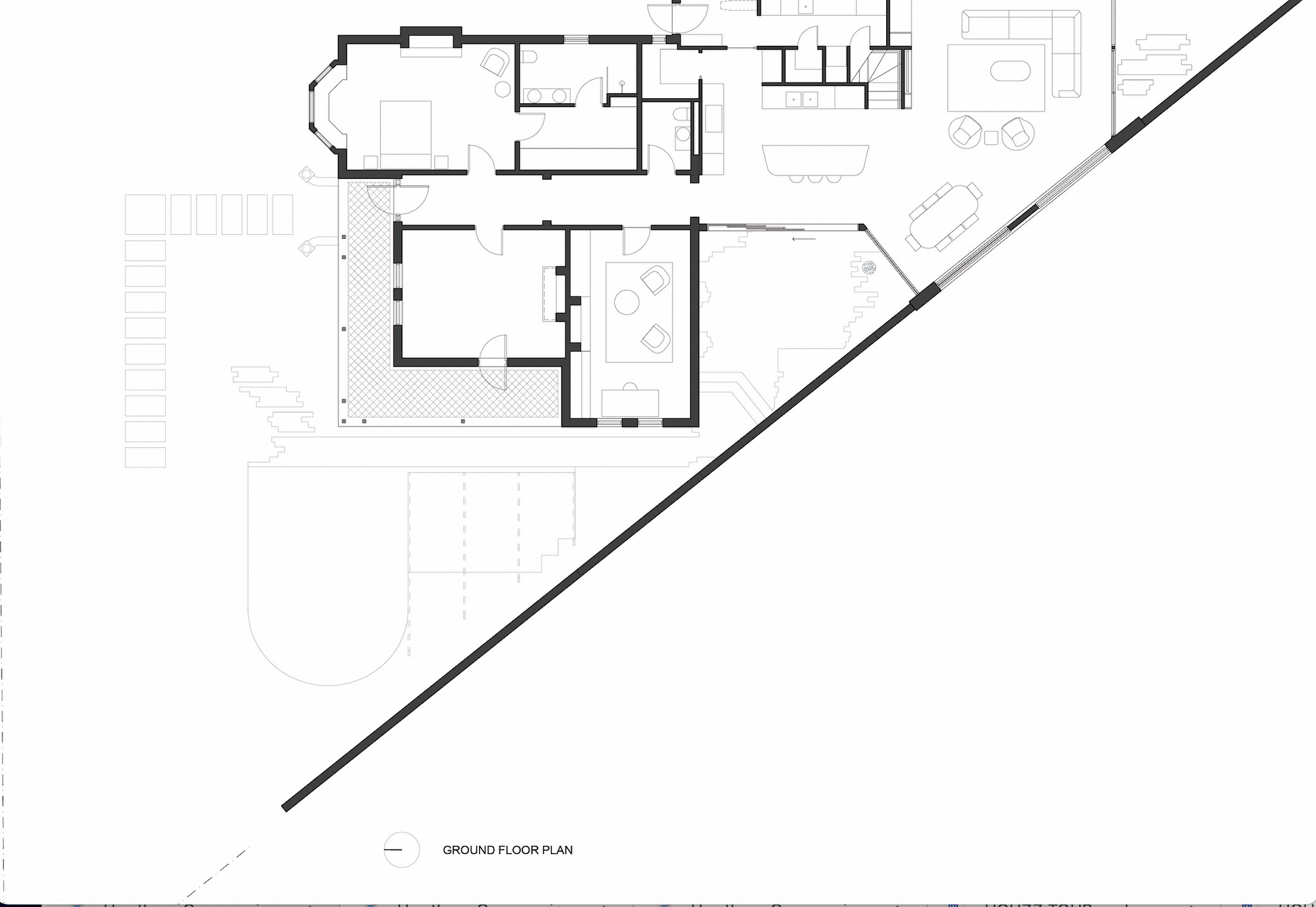
Plano de la planta baja
“Había que sacar partido al parque que está junto a la casa antigua –dice Bryant–, aunque el terreno para construir la nueva ampliación era limitado complicado por su forma triangular. Ahora, la luz y la orientación, y el nuevo patio, conectan la casa con el parque”.
“Había que sacar partido al parque que está junto a la casa antigua –dice Bryant–, aunque el terreno para construir la nueva ampliación era limitado complicado por su forma triangular. Ahora, la luz y la orientación, y el nuevo patio, conectan la casa con el parque”.
Plano de la primera planta
El llamativo techo de estilo victoriano de la casa original sirvió de inspiración para el nuevo tejado a dos aguas de la extensión de la parte de atrás. “El terreno es estrecho y complicado y la nueva extensión tenía que ser un volumen con tejado a dos aguas que disminuyera visualmente el volumen del primer piso”, cuenta la arquitecta.
El llamativo techo de estilo victoriano de la casa original sirvió de inspiración para el nuevo tejado a dos aguas de la extensión de la parte de atrás. “El terreno es estrecho y complicado y la nueva extensión tenía que ser un volumen con tejado a dos aguas que disminuyera visualmente el volumen del primer piso”, cuenta la arquitecta.
ANTES: Una imagen de la cocina previa a la reforma.
DESPUÉS: Con la reforma, se ha instalado un fantástico suelo de eucalipto, nuevos armarios de poliuretano de dos componentes, una encimera para la isla de piedra caliza y frontales de Dekton by Cosentino.
La cocina, en verde oscuro, es la protagonista de la nueva ampliación. Como decíamos, cabe destacar el suelo: una magnífica madera de eucalipto (denominada Blackbutt y que es original de la zona). La combinación de colores de la cocina encaja perfectamente con la colección de arte de los propietarios.
La cocina, en verde oscuro, es la protagonista de la nueva ampliación. Como decíamos, cabe destacar el suelo: una magnífica madera de eucalipto (denominada Blackbutt y que es original de la zona). La combinación de colores de la cocina encaja perfectamente con la colección de arte de los propietarios.
“El color amarillo de los baños y las paredes azul oscuro aportan pequeños acentos de color en la casa. Esta es una casa divertida que refleja cómo son sus propietarios, sus vidas, su gusto por el arte…”.
En el exterior se han seleccionado colores en la gama de los verdes y los grises que dialogan con el techo de pizarra de la antigua casa victoriana y los árboles y eucaliptos del parque que rodea la casa.
En el exterior se han seleccionado colores en la gama de los verdes y los grises que dialogan con el techo de pizarra de la antigua casa victoriana y los árboles y eucaliptos del parque que rodea la casa.
ANTES: Una imagen del salón antes de la reforma. Cabe destacar que la sostenibilidad y eficiencia energética han sido clave en la reforma. Las ventanas dobles, los electrodomésticos de bajo consumo y la solidez del diseño y los materiales hacen que la casa tenga un funcionamiento ecológico y esté diseñada para durar mucho tiempo.
ANTES: Una imagen de la zona de estar previa a la reforma.
DESPUÉS: El salón es un espacio completamente distinto. El revestimiento de las paredes es un porcelánico efecto cemento.
Bryant reconoce que trabajar con estos propietarios fue un placer. “Enfrentarse a una reforma en esa etapa de sus vidas para ampliar el hogar familiar no es fácil. Hay gente a la que a esta edad le da pereza y prefiere seguir con su casa de siempre y abandona un poco la decoración”, dice.
Bryant reconoce que trabajar con estos propietarios fue un placer. “Enfrentarse a una reforma en esa etapa de sus vidas para ampliar el hogar familiar no es fácil. Hay gente a la que a esta edad le da pereza y prefiere seguir con su casa de siempre y abandona un poco la decoración”, dice.
“Confiaron en mí, se divirtieron y, por si fuera poco, fueron muy audaces en la toma de decisiones. Su marcado sentido de la estética, como se ve en su colección de arte, nos permitió trabajar juntos para crear un diseño que refleja su personalidad”, asegura la profesional.
Sofá: Ajar Furniture. Butaca: Living Edge. Mesa de centro: Muuto. Lámpara de pie: Flos. Alfombra: The Rug Collection
Sofá: Ajar Furniture. Butaca: Living Edge. Mesa de centro: Muuto. Lámpara de pie: Flos. Alfombra: The Rug Collection
Aparte de construir dos nuevos patios, los jardines originales también se han renovado con nuevas pérgolas independientes.
Fotografía del segundo patio de la vivienda
Los arcos decorativos del pasillo son una de las características más atractivas de la casa antigua. Se han restaurado y pintado y vuelven a estar perfectos.
El nuevo comedor rebosa luz natural gracias a los enormes ventanales de suelo a techo que abren el espacio al soleado patio.
Mesa de comedor y sillas: Jardan
Mesa de comedor y sillas: Jardan
En el primer piso, el nuevo dormitorio tiene vistas de las copas de los árboles del parque gracias a la ventana en esquina.
► Encuentra ideas entre fotos de dormitorios en Houzz
Cama y mesilla de noche: Jardan
► Encuentra ideas entre fotos de dormitorios en Houzz
Cama y mesilla de noche: Jardan
Los azulejos en tonos amarillos han rejuvenecido completamente la estética del baño principal. Ahora, es un espacio fresco y lleno de vida.
En la vivienda antigua se ha reorganizado el espacio para añadir el nuevo dormitorio principal con vestidor y baño de los propietarios.
En la imagen, el nuevo aseo.
► ¿Vas a hacer reformas en casa? Encuentra a los mejores interioristas y decoradores en tu zona
¿Y A TI?
¿Qué te parece esta reforma y la nueva ampliación? Deja tu opinión en los comentarios
► ¿Vas a hacer reformas en casa? Encuentra a los mejores interioristas y decoradores en tu zona
¿Y A TI?
¿Qué te parece esta reforma y la nueva ampliación? Deja tu opinión en los comentarios


























Quién vive aquí: Una pareja de mediana edad
Situación: Hawthorn, Victoria, Australia
Proyecto: Sarah Bryant, de Bryant Alsop Architects
Constructor: Mil Constructions
Diseño de jardín: C.O.S Design
Constructor del diseño del jardín: Esjay Landscapes + Pools
Fotografía: Jack Lovel