Estados Unidos
Casas del mundo
Ecología y glamur se dan la mano en una espaciosa casa en Texas
El diseño de esta vivienda está inspirado en los años 50. Se trata de una casa sostenible y energéticamente eficiente.
Tras dos décadas dedicado al diseño de casas sostenibles, el arquitecto Jed Duhon, del estudio Steinbomer (Texas) decidió, junto a su marido, construirse la suya. Encontraron un terreno en un barrio de la ciudad de Austin, pero había un “gran problema” justo en el medio de la parcela: un enorme cedro olmo de Texas (un árbol protegido oriundo de la zona).
Al principio, descartaron el terreno porque sabían que construir alrededor del árbol iba a resultar complicado, pero las ventajas del barrio (con tiendas, restaurantes y el colegio al que van sus hijos) les hizo decidirse por el terreno. Finalmente, el gran árbol se ha convertido en una ventaja. El hecho de que esté en medio del terreno ha obligado a diseñar ángulos interesantes en la vivienda, que, además, encajan con la estética que quería recrear; la de los años 50. Además, desde todos los lados de la casa se ven árboles y naturaleza.
► Encuentra arquitectos bien valorados en la zona en la que vives
Al principio, descartaron el terreno porque sabían que construir alrededor del árbol iba a resultar complicado, pero las ventajas del barrio (con tiendas, restaurantes y el colegio al que van sus hijos) les hizo decidirse por el terreno. Finalmente, el gran árbol se ha convertido en una ventaja. El hecho de que esté en medio del terreno ha obligado a diseñar ángulos interesantes en la vivienda, que, además, encajan con la estética que quería recrear; la de los años 50. Además, desde todos los lados de la casa se ven árboles y naturaleza.
► Encuentra arquitectos bien valorados en la zona en la que vives
Entre las prioridades del arquitecto estaba conseguir que la casa fuera sostenible y energéticamente eficiente. El arquitecto ha colaborado con la empresa de ingeniería Positive Energy, que ha instalado sistemas activos y pasivos para ahorrar energía.
Por ejemplo, para mitigar la entrada de calor se han instalado grandes voladizos y no hay ventanas a las que les dé la luz directa del sol. Además, las paredes están aisladas con un sistema de aislamiento continuo. También se ha usado un sistema de sellado de aire llamado AeroBarrier, que previene las fugas rellenando los espacios de un centímetro o incluso menos. Un ERV (ventilador de recuperación de energía por sus siglas en inglés) intercambia el aire interior viciado por aire fresco filtrado del exterior, al tiempo que controla el grado de humedad.
Para el sistema de calentamiento de agua se ha instalado una bomba de calor eléctrica eficiente con temporizadores que se encuentra en el centro de la casa. Extrae aire acondicionado del interior y lo utiliza para generar calor.
Por ejemplo, para mitigar la entrada de calor se han instalado grandes voladizos y no hay ventanas a las que les dé la luz directa del sol. Además, las paredes están aisladas con un sistema de aislamiento continuo. También se ha usado un sistema de sellado de aire llamado AeroBarrier, que previene las fugas rellenando los espacios de un centímetro o incluso menos. Un ERV (ventilador de recuperación de energía por sus siglas en inglés) intercambia el aire interior viciado por aire fresco filtrado del exterior, al tiempo que controla el grado de humedad.
Para el sistema de calentamiento de agua se ha instalado una bomba de calor eléctrica eficiente con temporizadores que se encuentra en el centro de la casa. Extrae aire acondicionado del interior y lo utiliza para generar calor.
Otra prioridad era que las habitaciones tuvieran acceso al exterior (o al menos que tuvieran vistas).
“Es importante que las personas estemos conectadas con espacios al aire libre –dice el arquitecto. Creo que mejora la salud y el estado de ánimo”. Las grandes puertas de vidrio conectan el dormitorio principal con el patio trasero de la casa. En el porche, desde las sillas mariposa, la pareja disfruta viendo nadar a sus hijos en la piscina.
“Es importante que las personas estemos conectadas con espacios al aire libre –dice el arquitecto. Creo que mejora la salud y el estado de ánimo”. Las grandes puertas de vidrio conectan el dormitorio principal con el patio trasero de la casa. En el porche, desde las sillas mariposa, la pareja disfruta viendo nadar a sus hijos en la piscina.
La piscina se ha enlucido de blanco para crear un efecto brillante del agua. Harper, pareja del arquitecto, es médico y también una gran aficionado a las plantas. Él se ha encargado del paisajismo del jardín. “Yo era el responsable de la casa y él, del jardín. Ese ha sido el acuerdo”, cuenta el arquitecto.
¿Estás buscando a un profesional para tu próxima reforma en casa?
Encuentra en Houzz al mejor profesional para tu proyecto
Encuentra en Houzz al mejor profesional para tu proyecto
Como decíamos, el olmo cedro fue el responsable de las dudas que tuvo la pareja al adquirir el terreno. Según el arquitecto, este árbol es habitual de la zona, pero este es particularmente grande.
“Todos los espacios en uno de los lados de la casa, incluido el segundo piso, giran alrededor del árbol. Cuando ves los planos te preguntas de dónde vienen todos esos ángulos y es debido al árbol”, dice.
El patio delantero tiene césped natural pero en la parte de atrás se ha instalado césped artificial para que la casa se ensucie menos, especialmente porque los perros entran y salen todo el rato (a través de una puerta oculta que hay detrás de un helecho).
“Todos los espacios en uno de los lados de la casa, incluido el segundo piso, giran alrededor del árbol. Cuando ves los planos te preguntas de dónde vienen todos esos ángulos y es debido al árbol”, dice.
El patio delantero tiene césped natural pero en la parte de atrás se ha instalado césped artificial para que la casa se ensucie menos, especialmente porque los perros entran y salen todo el rato (a través de una puerta oculta que hay detrás de un helecho).
Las hojas del gigantesco ventanal en forma de L se pliegan como un acordeón. Conectan el salón y la cocina con el porche y la zona de la piscina. El porche tiene una estufa, ventilador, barbacoa y televisión.
Al fondo del cuarto de estar hay una estantería hecha a medida con una puerta que oculta la televisión. El arquitecto admite que instalar la chimenea de leña debajo no fue una opción demasiado ecológica, pero pudo más la admiración por la arquitectura de mediados de siglo y la nostalgia de otra época.
En la chimenea hay un sistema de recuperación de calor con un registro de aire y un respiradero.
Al fondo del cuarto de estar hay una estantería hecha a medida con una puerta que oculta la televisión. El arquitecto admite que instalar la chimenea de leña debajo no fue una opción demasiado ecológica, pero pudo más la admiración por la arquitectura de mediados de siglo y la nostalgia de otra época.
En la chimenea hay un sistema de recuperación de calor con un registro de aire y un respiradero.
En la imagen, el salón desde otro ángulo. Esta vez con las puertas de vidrio cerradas. Crear este rincón fue complicado y costoso.
“Aparte de la forma de L del espacio, el techo está ligeramente inclinado. Los volúmenes horizontales forman parte de la estructura”, explica,
Entre el mobiliario, destaca la Lounge Chair de los Eames (en la foto) y el suelo cerámico de gran formato que remite a las baldosas de terrazo, un material común utilizado en la arquitectura de los años cincuenta. Este tipo de azulejos (de 70 x 70 cm) se han instalado en la mayor parte de la planta baja.
Baldosas del suelo: Modernist, de Soriano Clay, Daltile
“Aparte de la forma de L del espacio, el techo está ligeramente inclinado. Los volúmenes horizontales forman parte de la estructura”, explica,
Entre el mobiliario, destaca la Lounge Chair de los Eames (en la foto) y el suelo cerámico de gran formato que remite a las baldosas de terrazo, un material común utilizado en la arquitectura de los años cincuenta. Este tipo de azulejos (de 70 x 70 cm) se han instalado en la mayor parte de la planta baja.
Baldosas del suelo: Modernist, de Soriano Clay, Daltile
La combinación de colores en la cocina (junto al salón) recuerda a la paleta que se usaba en las casas de la California de los años cincuenta, con colores vivos y brillantes. Aquí concretamente se han usado tonos amarillos en las sillas, aguamarina en los azulejos, negro en los electrodomésticos y la madera en los armarios.
El arquitecto creó un ideabook en Houzz para recopilar fotos inspiradoras y “construir la historia” de su casa (algo que también anima a hacer a sus clientes). En el proceso de construcción y diseño de su casa, él mismo seleccionó los acabados y los colores con el asesoramiento de la interiorista Amity Worrel.
Ella fue la que ideó poner taburetes alrededor de la isla de cocina –en vez de alineados–, lo que permite que la gente socialice de forma natural. Ahora, aseguran los propietarios, este es lugar más frecuentado de la casa.
El arquitecto creó un ideabook en Houzz para recopilar fotos inspiradoras y “construir la historia” de su casa (algo que también anima a hacer a sus clientes). En el proceso de construcción y diseño de su casa, él mismo seleccionó los acabados y los colores con el asesoramiento de la interiorista Amity Worrel.
Ella fue la que ideó poner taburetes alrededor de la isla de cocina –en vez de alineados–, lo que permite que la gente socialice de forma natural. Ahora, aseguran los propietarios, este es lugar más frecuentado de la casa.
La vivienda no tiene gas. Esto ha sido una decisión de los propietarios en consonancia con su respeto por el medio ambiente. Sí han instalado una placa de inducción en la cocina. El toque de color lo aportan los tarros Orange Lincoln Beautyware, unas piezas de los años 50.
El rincón de desayuno está formado por un banco esquinero flotante de madera de roble blanco, la mesa Tulip, sillas Eiffel de los Eames y un espejo con forma de estrella que pone el toque divertido y recuerda a la decoración de las casas de Palm Springs en California.
La puerta da a una zona abierta al patio todo el verano y que en invierno sirve como invernadero para las plantas de Harper.
La puerta da a una zona abierta al patio todo el verano y que en invierno sirve como invernadero para las plantas de Harper.
La pared de ladrillo visto del dormitorio principal se extiende hasta el porche exterior. Su textura crea un ambiente que recuerda a los años 50.
El baño del dormitorio principal tiene muchísima luz natural. Casi todos los espacios de la casa tienen una ventana, asegura Duhon, por lo que se puede caminar tranquilamente sin necesidad de encender las luces (en arquitectura se trata de una estrategia ecológica llamada luz pasiva).
Revestimiento de pared: Marazzi Zellige. Encimera: cuarzo Cambria, de Ella Matte
Revestimiento de pared: Marazzi Zellige. Encimera: cuarzo Cambria, de Ella Matte
Este aseo destaca por sus azulejos amarillos texturizados: son un guiño a la década de los cincuenta. El mueble tocador es de madera de roble blanco.
Azulejos: Daltile Revalia en Mostaza. Encimera: cuarzo Cambria, de Skara Brae
Azulejos: Daltile Revalia en Mostaza. Encimera: cuarzo Cambria, de Skara Brae
Este otro aseo se encuentra al lado de una habitación de invitados (en el primer piso). En la ducha y las paredes se ha instalado un revestimiento de azulejos esmaltados. Son cuadrados y en varios tonos de verde.
El reflejo del espejo permite adivinar una parte de la cama de la habitación de invitados, que Harper hizo a mano mientras estaba en el ejército en Hawai.
► ¿Estás pensando en reformar el baño? Inspírate entre miles de fotos de baños modernos
El reflejo del espejo permite adivinar una parte de la cama de la habitación de invitados, que Harper hizo a mano mientras estaba en el ejército en Hawai.
► ¿Estás pensando en reformar el baño? Inspírate entre miles de fotos de baños modernos
El comedor (de doble altura) está en el lado este de la casa. Cuenta con un enorme ventanal de unos cuatro metros de altura que da a la calle. “Quería luz natural en el espacio, pero no que fuera una pecera”, asegura el arquitecto.
Por fuera del ventanal se ha construido una celosía de ladrillo similar a los que hay en las ventanas de Palm Springs. Su objetivo es ofrecer sombra y privacidad. Encontrar ventanas que se abrieran hacia adentro fue otro desafío. El arquitecto buscó por todos los lados y, finalmente, encontró una empresa: Loewen Windows, que las hizo a medida para ese espacio.
En la primera foto de este artículo se ve claramente la orientación de la habitación y el efecto de los ladrillos desde el exterior.
Por fuera del ventanal se ha construido una celosía de ladrillo similar a los que hay en las ventanas de Palm Springs. Su objetivo es ofrecer sombra y privacidad. Encontrar ventanas que se abrieran hacia adentro fue otro desafío. El arquitecto buscó por todos los lados y, finalmente, encontró una empresa: Loewen Windows, que las hizo a medida para ese espacio.
En la primera foto de este artículo se ve claramente la orientación de la habitación y el efecto de los ladrillos desde el exterior.
Además de tener un propósito práctico, la pantalla de ladrillo crea un efecto de luces y sombras que inunda todo el espacio.
La espectacular escalera cuenta con peldaños de roble blanco y un barandilla de acero. Las barras de acero verticales, que soportan el segundo piso, actúan como panel divisorio entre la cocina y el comedor.
En la primera foto de este artículo se puede ver la orientación de la cocina.
En la primera foto de este artículo se puede ver la orientación de la cocina.
Las habitaciones de los niños se encuentran en la segunda planta. El niño, de 11 años, escogió personalmente los colores de la pared. Se trata de unos paneles MDF.
Colores de pared: Peacock Plume, Classic French Grey e Indigo Batik, de Sherwin-Williams
Colores de pared: Peacock Plume, Classic French Grey e Indigo Batik, de Sherwin-Williams
En el suelo del baño contiguo se ha instalado una baldosa con un dibujo muy colorido.
Encimera: encimera de cuarzo Cambria de Kirkstead. Azulejos de pared: Daltile Mosaics, de Galaxy. Suelo: Daltile Keystones, de Macaron Blend.
Encimera: encimera de cuarzo Cambria de Kirkstead. Azulejos de pared: Daltile Mosaics, de Galaxy. Suelo: Daltile Keystones, de Macaron Blend.
La niña también seleccionó los colores de su dormitorio. Su baño, que no aparece en la foto, tiene bañera y ducha.
El arquitecto instaló un sistema de control de iluminación de Lutron, que ahorra energía en toda la casa. Además de permitir que los usuarios enciendan sus luces con temporizadores, el sistema integrado les permite encender y apagar las luces a través de una aplicación en sus teléfonos: una función que resulta útil cuando hay un segundo piso en una casa o cuando se tienen niños que siempre tienden a dejarse las luces encendidas.
Colores de pared: Daphne, Appleblossom y Sunbeam Yellow, de Sherwin-Williams
El arquitecto instaló un sistema de control de iluminación de Lutron, que ahorra energía en toda la casa. Además de permitir que los usuarios enciendan sus luces con temporizadores, el sistema integrado les permite encender y apagar las luces a través de una aplicación en sus teléfonos: una función que resulta útil cuando hay un segundo piso en una casa o cuando se tienen niños que siempre tienden a dejarse las luces encendidas.
Colores de pared: Daphne, Appleblossom y Sunbeam Yellow, de Sherwin-Williams
La implementación de las medidas energéticas eficientes y sostenibles ha supuesto que la casa tenga la calificación más alta del programa Austin Energy Green Building.
Los dueños creen que –ahora sí– el árbol es el centro y el símbolo de la casa. “Tengo un seguro específico para el árbol. Está casi más protegido que mis hijos. Haremos lo posible para que viva muchos años”, asegura el arquitecto.
► ¿Buscas inspiración? Encuéntrala entre miles de fotos de casas en España
Los dueños creen que –ahora sí– el árbol es el centro y el símbolo de la casa. “Tengo un seguro específico para el árbol. Está casi más protegido que mis hijos. Haremos lo posible para que viva muchos años”, asegura el arquitecto.
► ¿Buscas inspiración? Encuéntrala entre miles de fotos de casas en España
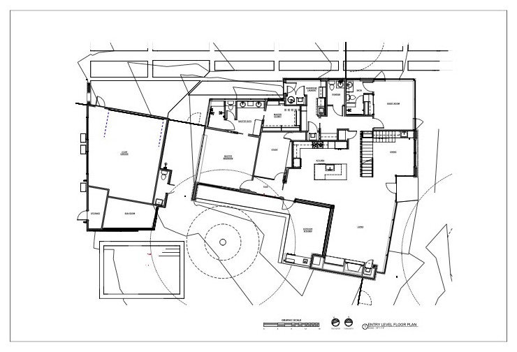
En la imagen, el plano del primer piso de la vivienda. Las habitaciones están “cortadas” para dejar espacio a la copa del árbol.
Planos 3D: Por qué son imprescindibles en cualquier proyecto
Planos 3D: Por qué son imprescindibles en cualquier proyecto
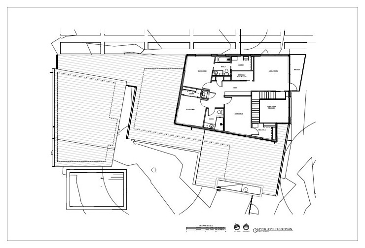
Plano de la segunda planta de la vivienda.
¿Y A TI?
¿Qué te gusta de esta nueva casa en Austin, Texas? Esperamos tus comentarios
¿Y A TI?
¿Qué te gusta de esta nueva casa en Austin, Texas? Esperamos tus comentarios


























Quién vive aquí: El arquitecto Jed Duhon, su marido, Michael Harper, sus dos hijos, de 11 y 13 años, y sus perros Basenji, El Cairo y Kenia
Situación: Austin, Texas
Superficie: 316 metros cuadrados (cinco habitaciones y seis baños)
Proyecto: Jed Duhon, director de Studio Steinbomer (arquitectura e interiorismo), Amity Worrel (interiorismo) y Michael Harper (paisajismo)
Constructor: Ford Strei Custom Home Builders
Fotografía: Andrea Calo
Cuando los dueños adquirieron el terreno en el vecindario de Allandale, Austin, había una casa de 75 metros cuadrados que no se adaptaba a sus necesidades, pero, en lugar de demolerla, la donaron a una empresa que se encarga de revenderlas.
Admirador de la arquitectura moderna de mediados de siglo de Palm Springs, el dueño quería reinterpretar ese estilo de las casas californianas en una vivienda sostenible y adecuada al clima cálido y húmedo de Austin.
Harper, pareja del arquitecto, se ha involucrado en el proyecto. “Decidí tratar la opinión de Harper como si fuera la de un cliente. En un proyecto, hay que escuchar a los clientes casi como si fueras un consejero matrimonial”, dice Duhon.