Casas Houzz: Una vivienda enigmática, entre montañas, en México
En plena naturaleza, esta vivienda reinventa sutilmente la imagen de la casa contemporánea mexicana.
Este enigmático volumen se reviste del color de la tierra y aparece encerrado entre las montañas. Aquí, los habitantes pueden disfrutar de las vistas increíbles de la región de El Jonuco y convivir directamente con la flora y la fauna del noreste de México. La vivienda nace con la voluntad de mimetizarse y respetar el entorno, al mismo tiempo que potencia las vistas a los cerros circundantes.
La gran cantidad de cedros existentes hacía imposible utilizar un sistema constructivo tradicional. Por eso, la casa se ha diseñado a base de volúmenes en voladizo, logrando así salvar árboles de hasta 10 metros de alto. De este modo, gracias a la súperposición de volúmenes y su posición en el terreno, la planta superior puede tener vistas sin ningún tipo de interrupciones.
Desafiando a la gravedad: Viviendas e interiores en voladizo
Desafiando a la gravedad: Viviendas e interiores en voladizo
Respondiendo al contexto en el que se encuadra, la casa se divide por zonas. La idea es conservar el máximo número de árboles. Las dos plantas, de origen muy diferente entre sí, solucionan condiciones distintas del terreno y de uso de la manera más simple posible.
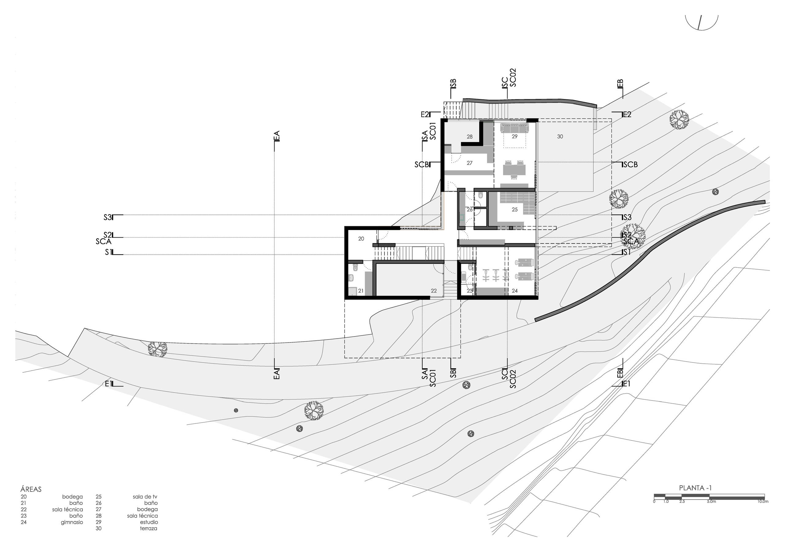
La planta baja funciona como un basamento más sólido que ancla el edificio al terreno. Sin embargo, en ningún momento se descuida el aprovechamiento de las visuales. Este nivel alberga principalmente las áreas de servicio, el estudio y el gimnasio.
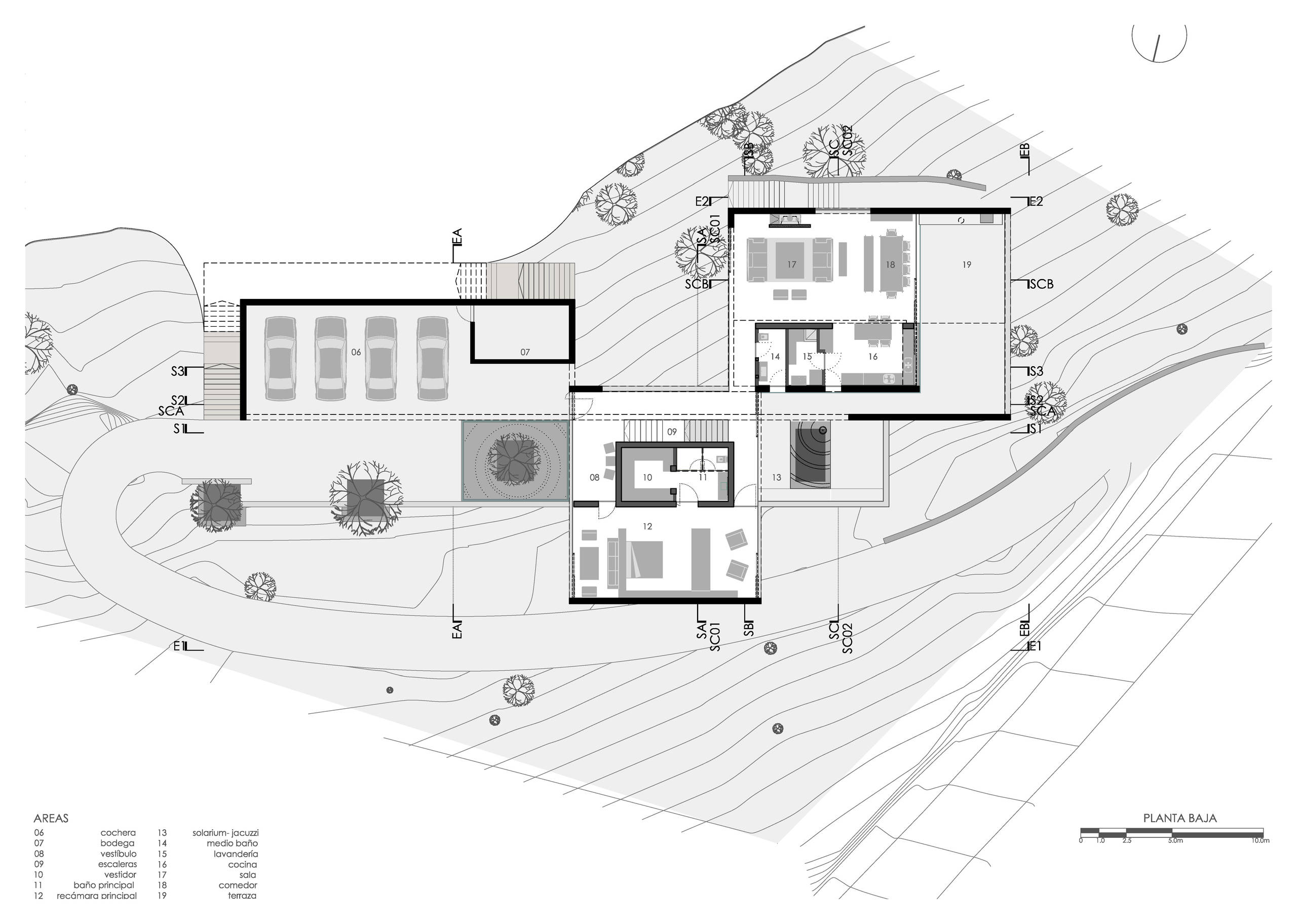
En la planta superior es donde se despliega la mayor parte del programa. Aquí están las áreas sociales, privadas y el garaje; todo claramente zonificado.
En este nivel se encuentra la planta de acceso, con el garaje en el punto más alto posible, desde donde se acentúa el voladizo.
En este nivel se encuentra la planta de acceso, con el garaje en el punto más alto posible, desde donde se acentúa el voladizo.
“Los propietarios querían estar en contacto constante con la montaña. Querían abrir los ojos por la mañana y ver el paisaje. Además, les interesaba una casa desarrollada en una sola planta, cosa difícil en un terreno con pendiente pronunciada y con muchos árboles”, comenta el arquitecto.
En relación a la distribución, el edificio se divide en tres bloques. La planta inferior contiene mobiliario de usos múltiples, pensado para reconfigurar los espacios como habitaciones para las visitas.
En relación a la distribución, el edificio se divide en tres bloques. La planta inferior contiene mobiliario de usos múltiples, pensado para reconfigurar los espacios como habitaciones para las visitas.
Debido al esquema del proyecto, la azotea funciona también como una gran área social exterior… o como un envidiable mirador.
“Nos costó mucho decidirnos por esta solución volumétrica y estructuralmente arriesgada para un sitio como este; pero propuestas más discretas bloqueaban las vistas y hubiesen hecho peligrar los árboles. Lo más complicado fue resolver el voladizo de la habitación principal, pues era difícil poner una estructura de este tipo en un volumen transparente”, revela David Pedroza.
En el lado oeste, una serie de terrazas unifican las áreas de ocio al aire libre, concentrando por completo la vista hacia las montañas.
Las terrazas son un tema recurrente en el diseño de la casa. El propio diseño provoca que la vida se proyecte hacia el exterior.
“La casa tiene una distribución interior muy práctica a la que se le ‘adosan’ una serie de terrazas, solariums y patios, que no son indispensables para el funcionamiento de la casa pero que proporcionan estancias agradables para disfrutar del exterior. Irónicamente, en el día a día son estos espacios los que más se utilizan, pues las distintas orientaciones permiten disfrutar del sol durante todo el día”, añade el arquitecto Pedroza.
Hacia el interior, el espacio convive de manera cercana con el paisaje, asimilándolo dentro de la vida cotidiana. Las cristaleras y ventanas de gran formato ofrecen una conexión directa hacia el entorno, en fuerte contraste con la solidez de la piel externa.
Casas de cristal: Disfruta de la luz y las vistas en todo su esplendor
Casas de cristal: Disfruta de la luz y las vistas en todo su esplendor
La paleta de materiales busca imprimir en el proyecto un carácter rústico, pero al mismo tiempo un sentido de temporalidad, definiendo de manera clara y precisa los espacios y acentuando su longitud y horizontalidad.
Cómo combinar materiales tradicionales y contemporáneos
Cómo combinar materiales tradicionales y contemporáneos
El área social se enriquece con piezas y adornos contemporáneos, así como cuadros, máscaras y esculturas de diversas épocas y culturas.
Vale la pena enfatizar que los muros de gran espesor, los techos planos y las estructuras de madera son elementos clave de la arquitectura tradicional mexicana, que en esta ocasión se emplean de una manera actual.
Frida Kahlo: Cómo llevar a la decoración del hogar su estilo único
Frida Kahlo: Cómo llevar a la decoración del hogar su estilo único
El propio arquitecto cuenta que el matrimonio casi no tiene visitas en esta residencia, ya que la consideran un santuario personal. Solo reciben “amigos cercanos y familiares, pero pocos. Es una casa para ellos; muy íntima y personal”.
La habitación principal se ubica en el volumen en voladizo. Se trata del área privada más importante de la residencia. El ámbito se reviste de madera y hormigón con pigmentación, definiendo un carácter rústico y apacible, perfecto para la pareja.
El baño principal es un espacio amplio lleno de luz natural que transmite una experiencia diferente, haciendo de las actividades diarias un verdadero ritual.
Un baño zen: Cómo convertirlo en un oasis de serenidad
Un baño zen: Cómo convertirlo en un oasis de serenidad
El área de televisión se localiza en la planta baja, un espacio más cerrado y privado, pero que nunca pierde la posibilidad de tener luz natural y contacto con la vegetación.
Los espacios exteriores son variados en programa y orientación, lo que permite su uso en todos los momentos del día: uno de los grandes aciertos de la vivienda.
CUÉNTANOS…
¿Te gusta esta casa? ¿Y el paisaje? Déjanos tu opinión en la sección de comentarios
CUÉNTANOS…
¿Te gusta esta casa? ¿Y el paisaje? Déjanos tu opinión en la sección de comentarios

























Quién vive aquí: Un matrimonio
Situación: El Jonuco, Nuevo León, México
Superficie: 750 metros cuadrados
Arquitecto: David Pedroza Castañeda, de P+0 Arquitectura: un joven despacho con sede en Monterrey, México
Vista desde la distancia, la vivienda se muestra llena de misticismo, en un homenaje sutil a los varios pueblos mexicanos delimitados por valles y zonas montañosas.
Desde la distancia, el conjunto parece un accidente geológico más, que obtiene su textura de la piedra del lugar, pero que contrasta con la forma de las montañas y el valle, como si de una roca que se implanta dentro de este magnífico paisaje se tratase.