Casas del mundo
Casas Houzz: Una vivienda en México de espacios amplios
En una zona residencial de la ciudad de Guadalajara, esta casa se abre completamente al jardín y la piscina.
La casa fue construida originalmente en los años 60 y su arquitectura expresa la esencia, lenguaje y detalles de ese momento. La vivienda destaca por sus líneas sencillas, el uso contenido de los materiales, una distribución continua y su relación directa con el exterior. Los arquitectos han analizado la residencia original, asimilándola y sintetizándola. Así, la rehabilitación ha captado su esencia, compatibilizándola con los deseos y las necesidades de los nuevos habitantes.
Se han rescatado algunos detalles, como muros de piedra y el suelo original de la planta baja, ya que aquí es donde estaban embebidas las redes de instalaciones más recientes. “Ha sido un trabajo de precisión; tal y como exigían los clientes: una familia joven con una forma única de percibir la arquitectura y vivirla”, comenta el arquitecto Elías Rizo.
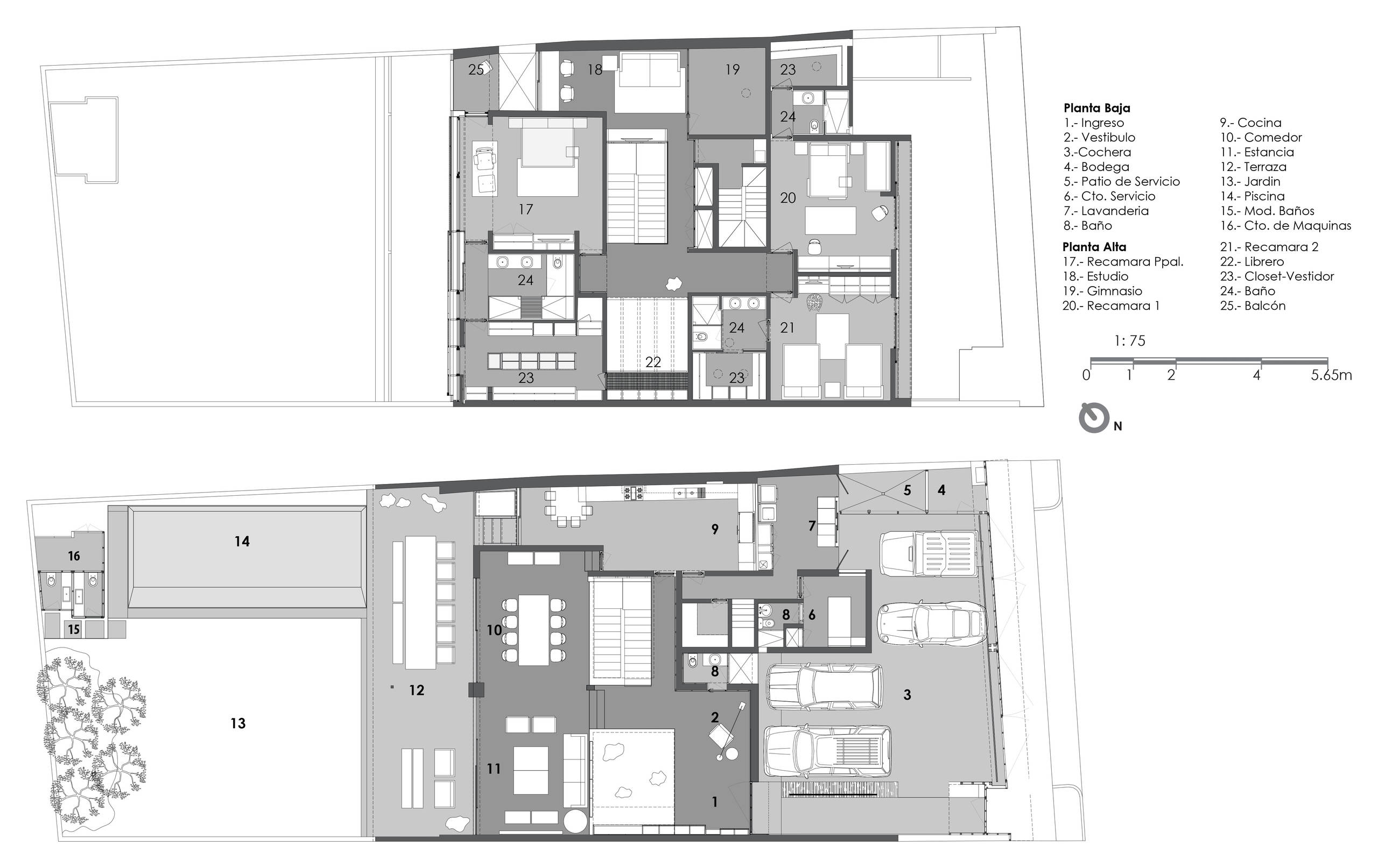
En la planta baja se han ubicado las áreas sociales y de servicio, poniendo atención particular al acceso principal y la conexión entre la sala-comedor y la terraza.
En la planta alta se encuentran las áreas privadas, el estudio y el gimnasio, enfatizando la privacidad para la familia.
Descubre aquí más casas en México
En la planta alta se encuentran las áreas privadas, el estudio y el gimnasio, enfatizando la privacidad para la familia.
Descubre aquí más casas en México
La zona exterior, que integra la terraza, el jardín y la piscina, es donde la familia pasa la mayor parte del tiempo. Se trata de un lugar pensado y concebido enteramente para estimular la convivencia.
“La casa gira en torno a dos espacios principales: el vestíbulo de doble altura y la terraza. El vestíbulo está restaurado y destinado a convertirse en un espacio escultórico”, revela Elías Rizo.
La casa permite disfrutar de las mejores vistas. Unos paneles correderos traslúcidos de madera protegen del sol y transforman la fachada al jardín.
Una de las intenciones principales fue crear atmósferas acogedoras, alejándose totalmente de tendencias y estereotipos arquitectónicos y buscando una personalidad propia de acuerdo al modo y estilo de vida de los habitantes.
Así, la selección de materiales combina tonos claros con oscuros, definiendo un lenguaje sobrio de contrastes con pinceladas cálidas.
Así, la selección de materiales combina tonos claros con oscuros, definiendo un lenguaje sobrio de contrastes con pinceladas cálidas.
La madera el material protagonista en fachada e interiores, mientras que la piedra natural en tonalidades oscuras se complementa con algunos detalles de la construcción original.
La cocina es amplia y muy neutra Negro, gris y blanco son los tonos predominantes en los acabados.
Cocina: 9 inventos recientes que te harán la vida aún más fácil
Cocina: 9 inventos recientes que te harán la vida aún más fácil
Todos los ámbitos de la casa están pensados para fomentar el encuentro y la convivencia familiar.
El estudio o sala familiar no es la excepción: una zona especial para ser el punto de reunión y disfrutar de una tarde de cine.
El estudio o sala familiar no es la excepción: una zona especial para ser el punto de reunión y disfrutar de una tarde de cine.
En el cuarto de baño principal, se utilizó de manera continua un mármol blanco en suelos y paredes. El objetivo es hacer uso de la menor cantidad de materiales posible y potenciar el atractivo de la piedra blanca en el espacio.
Cómo crear diferentes ambientes en el baño a través de los revestimientos
Cómo crear diferentes ambientes en el baño a través de los revestimientos
En la habitación principal se sigue la línea estética que predomina en el resto del proyecto.
Claramente, en esta casa se aprecia una elegancia que no se consigue a través de la selección de accesorios y objetos costosos, sino por medio de la simplicidad y de un diseño congruente con la personalidad de los habitantes.
CUÉNTANOS…
¿Qué es lo que más te gusta de esta vivienda? Esperamos tus comentarios
Claramente, en esta casa se aprecia una elegancia que no se consigue a través de la selección de accesorios y objetos costosos, sino por medio de la simplicidad y de un diseño congruente con la personalidad de los habitantes.
CUÉNTANOS…
¿Qué es lo que más te gusta de esta vivienda? Esperamos tus comentarios
















Quién vive aquí: Una familia joven con una forma única de vivir la arquitectura
Situación: Guadalajara, Jalisco, México
Superficie: 620 metros cuadrados
Arquitecto: Elías Rizo Suárez y Alejandro Rizo Suárez, de Elías Rizo Arquitectos, un despacho con sede en Guadalajara, México
La casa se había deteriorado mucho con los años. Aunque antes se había intervenido en varias ocasiones para restaurarla, sin embargo la mayoría de los elementos no estaban en buen estado o tenían poca utilidad para la nueva propuesta.