Casas del mundo
Casas Houzz: En México, un refugio de soltero sobre un volcán
Terrazas con increíbles vistas y un interior confortable: esta casa de fin de semana lo tiene todo para desconectar.
El cliente, un hombre soltero, quería construir su segunda residencia en el bosque, sobre un terreno montañoso. A pesar de las dificultades topográficas, el equipo de Elías Rizo Arquitectos aceptó el reto. ¿Resultado? Una singular y sencilla vivienda, con fachada de placas de acero y caminos de grava, que se mimetiza con la belleza natural del entorno.
El acceso a la vivienda se realiza desde el punto más alto de la propiedad. La cubierta, de hormigón visto y con una cama de grava sobrepuesta, acentúa el perfil del volumen.
Los vehículos descienden hacia una cochera exterior, que se define con un marco de piedra braza, introduciéndose en la montaña.
El espacio entre la cochera y la casa se ha diseñado como una escalinata recubierta de losetas rectangulares de varias dimensiones. La grava se mantiene, como una extensión visual de la losa de la azotea:
“El tapiz de grava alude a la azotea y parece sugerir que el edificio es una extrusión del terreno mismo”, comenta el arquitecto Elías Rizo, responsable del proyecto.
Los vehículos descienden hacia una cochera exterior, que se define con un marco de piedra braza, introduciéndose en la montaña.
El espacio entre la cochera y la casa se ha diseñado como una escalinata recubierta de losetas rectangulares de varias dimensiones. La grava se mantiene, como una extensión visual de la losa de la azotea:
“El tapiz de grava alude a la azotea y parece sugerir que el edificio es una extrusión del terreno mismo”, comenta el arquitecto Elías Rizo, responsable del proyecto.
Al final del camino, aparece la fachada frontal, revestida de piezas de placas de acero laqueada, que envejecerán paulatinamente en contacto con los elementos atmosféricos.
“Con el tiempo, la placa perderá su lustre y se irá oxidando, dejando un rastro de óxido sobre la piedra, que terminará por confundirse con el rojo de la tierra, tan característico de la región”, explica Elías Rizo.
Acero corten: Un material vivo, versátil y con mucho carácter
“Con el tiempo, la placa perderá su lustre y se irá oxidando, dejando un rastro de óxido sobre la piedra, que terminará por confundirse con el rojo de la tierra, tan característico de la región”, explica Elías Rizo.
Acero corten: Un material vivo, versátil y con mucho carácter
El volumen de la casa es un prisma que se relaciona respetuosamente con su entorno, exponiendo su fachada lateral a la pendiente del cerro, desde donde se disfrutan de las mejores vistas.
En la envolvente, se optó por crear un quiebre en la cubierta, justo en el acceso, para interrumpir la proporción tan alargada del edificio.
En la envolvente, se optó por crear un quiebre en la cubierta, justo en el acceso, para interrumpir la proporción tan alargada del edificio.
La vivienda es de planta rectangular, introduciéndose en una de las plataformas del terreno. Se realizó una inclinación en el muro de la sala, emulando la fachada, para definir un espacio mayor de terraza y tener vistas directas del magnífico volcán mexicano de Colima, de casi 4.000 metros de altura.
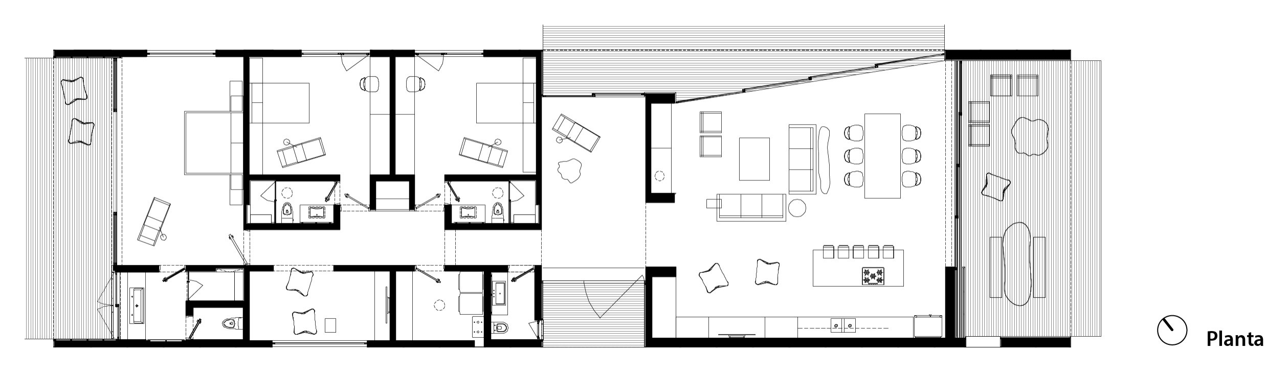
El vestíbulo principal atraviesa el volumen y lo divide en dos bloques.
El bloque de oriente acoge el área social: el estar, comedor y la cocina, un espacio común, amplio y flexible.
Materiales y mobiliario son de tonos neutros –madera, pétreos y blancos.
Materiales y mobiliario son de tonos neutros –madera, pétreos y blancos.
Esta zona de la casa se comunica directamente, a través de puertas corredizas de vidrio, con una terraza techada que flota sobre el bosque.
En el bloque de poniente, una terraza con un revestimiento de tablones de madera cumarú, en voladizo sobre el terreno, se comunica con la habitación principal, gracias a unas puertas corredizas.
La casa tiene, también, dos habitaciones para invitados, cada una con baño propio, además de un baño común y el área de servicio para el lavado.
Maderas tropicales: Conoce las más destacadas y sus aplicaciones
La casa tiene, también, dos habitaciones para invitados, cada una con baño propio, además de un baño común y el área de servicio para el lavado.
Maderas tropicales: Conoce las más destacadas y sus aplicaciones
La sencillez y la neutralidad del diseño interior (un ejemplo, el dormitorio principal, arriba) permiten que la casa se relacione de manera natural con el exterior, logrando un agradable equilibrio.
Aquí puedes ver otra casa de los mismos arquitectos
CUÉNTANOS…
¿Qué es lo que más te atrae de esta casa mexicana? ¿Te imaginas viviendo cerca de un volcán? Deja tu opinión en los comentarios
Aquí puedes ver otra casa de los mismos arquitectos
CUÉNTANOS…
¿Qué es lo que más te atrae de esta casa mexicana? ¿Te imaginas viviendo cerca de un volcán? Deja tu opinión en los comentarios














Quién vive aquí: Un hombre de mediana edad
Situación: Tapalpa, Jalisco, México
Superficie: 450 metros cuadrados
Arquitecto: Elías Rizo Suárez y Alejandro Rizo Suárez, de Elías Rizo Arquitectos