Casas Houzz
Casas del mundo
Casas Houzz: Diseñada para disfrutar al 100 % del exterior
Esta casa en México se adapta perfectamente a la demanda de espacios exteriores de su joven propietario y su mascota.
El proyecto de esta vivienda giró, desde un principio, en torno a la idea de plantear un hogar ideado tanto para el disfrute de su propietario como de su perra a través de amplios espacios en el exterior. La respuesta del joven estudio P+0 Arquitectura fue una casa con el valor añadido de que todos estos espacios exteriores están fácilmente conectados entre sí a través de una escalera que recorre la fachada posterior. Un hogar ideal para amantes de las áreas verdes y la vida al aire libre.
Hacia el interior, el proyecto explora una arquitectura de lleno y vacío en la que tan solo se edificó la mitad del solar y se dejó el resto como área exterior y de patio. De este modo, la casa se orientó también hacia la zona posterior, logrando una conexión e interdependencia en todo momento entre interior y exterior, y estableciendo a la vez una comunicación transversal. Además, se incluyó una escalera lineal que recorre la fachada posterior y que permite un recorrido completo de la vivienda de manera vertical.
“Para este proyecto el cliente no nos puso excesivos requerimientos más allá de que fuera una casa muy abierta, sin divisiones en las áreas sociales.
Tomamos la decisión de concentrar nuestros esfuerzos en los espacios exteriores tras llegar a la conclusión de que el cliente y su perrita necesitaban mayores y mejores espacios al aire libre; también tras observar que la relación programa-terreno permitía proponer un jardín muy generoso hacia donde podíamos volcarnos”, explica el arquitecto.
Pregunta al experto: Cómo diseñar un jardín integrado con la vivienda
Tomamos la decisión de concentrar nuestros esfuerzos en los espacios exteriores tras llegar a la conclusión de que el cliente y su perrita necesitaban mayores y mejores espacios al aire libre; también tras observar que la relación programa-terreno permitía proponer un jardín muy generoso hacia donde podíamos volcarnos”, explica el arquitecto.
Pregunta al experto: Cómo diseñar un jardín integrado con la vivienda
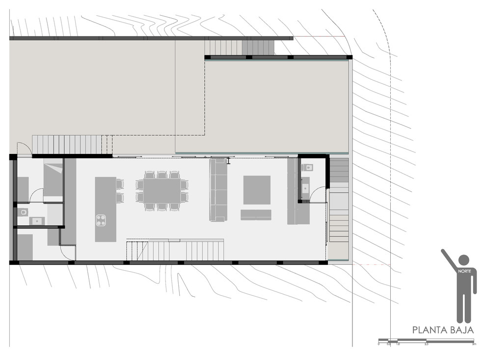
Así, la planta baja presenta un esquema abierto que libera el espacio de divisiones y define una integración completa entre el interior y el exterior. En este nivel se ubica el área social y de servicio.
En la planta primera se ha buscado conseguir el mismo efecto de integración, lo cual se logró mediante la comunicación entre la zona de estar y los dos dormitorios por medio de grandes puertas correderas de madera.
Desde este nivel, se puede bajar al jardín gracias a la escalera externa. Esta relación estrecha entre interior-exterior se aprecia aun más en esta planta puesto que en ella se disfruta de un contacto visual con el paisaje en todo momento.
Desde este nivel, se puede bajar al jardín gracias a la escalera externa. Esta relación estrecha entre interior-exterior se aprecia aun más en esta planta puesto que en ella se disfruta de un contacto visual con el paisaje en todo momento.
“Lo más difícil fue mantener el esquema propuesto de volumen mitad lleno-mitad vacío. Las necesidades del programa generaban espacios ‘invasores’ que teníamos que pensar muy cuidadosamente para que pudiesen integrarse bien en el volumen principal y permitiesen conservar su sobriedad”, cuenta David Pedroza.
Algunos rincones resultaron de la cuidadosa confección del espacio arquitectónico, dando lugar a sitios de espera o espacios de reflexión y contemplación, como este que vemos aquí y que se convirtieron en los verdaderos protagonistas del proyecto.
Haz clic aquí si quieres leer un artículo sobre otra vivienda en Monterrey
Haz clic aquí si quieres leer un artículo sobre otra vivienda en Monterrey
“Definitivamente los espacios favoritos para ambos inquilinos de la casa son los exteriores. Disfrutan especialmente de la terraza del área social conectada con el jardín y del solárium de la planta alta, desde donde se pueden apreciar las mejores vistas del cerro de la Silla”, comenta el arquitecto.
¿Te gustan estas sillas? Haz clic aquí para leer un artículo sobre la silla Acapulco
¿Te gustan estas sillas? Haz clic aquí para leer un artículo sobre la silla Acapulco
“La escalera metálica que conecta jardín, terraza y solárium continuará en un futuro hasta la azotea para sumar otra gran terraza a los numerosos espacios exteriores de la casa. La perra ha apreciado la gran cantidad de áreas al aire libre que tiene, así como la conexión entre ellas por las escaleras. Como sabíamos que a la mayoría de los perros les aterrorizan las escaleras con peldaños volados, optamos por unos cerrados, incluso para las escaleras metálicas ligeras del jardín”, explica David.
Escaleras: Mucho más que un espacio de paso
Escaleras: Mucho más que un espacio de paso
La relación y comunicación espacial, unida al uso mínimo de divisiones entre zonas, define el proyecto tomando la esencia de un loft, un espacio con una continuidad total tanto en horizontal como en vertical.
Espacios diáfanos: 8 ideas capaces de darle un aire nuevo a tu casa
Espacios diáfanos: 8 ideas capaces de darle un aire nuevo a tu casa
Los acabados del interior son sencillos debido a limitaciones de presupuesto. Por eso, se optó por dejar visto el hormigón de ciertas zonas de la estructura y los muros, el suelo asimismo es de hormigón pulido y las paredes se acabaron con pintura blanca, determinando una paleta de color claramente limpia y neutra. Esto permitió, por otro lado, incorporar detalles y muebles con materiales, colores y texturas en contraste.
Generalmente, durante los días laborales este espacio es utilizado como un loft, con las puertas correderas de vidrio abiertas para conectar el interior totalmente con el exterior y que el espacio se inunde de iluminación y ventilación natural.
Casas de cristal: Disfruta de la luz y las vistas en todo su esplendor
Casas de cristal: Disfruta de la luz y las vistas en todo su esplendor
Los fines de semana se aprovecha más el patio, especialmente cuando se cuenta con el tiempo suficiente para desayunar o comer en la terraza techada o para ver el atardecer en el solárium.
El diseño interior es sencillo, con algunos elementos de color que contrastan con los acabados neutros. Pero en cualquier caso, siempre se tomó en consideración en su diseño que el mobiliario y los acabados fueran aptos para la mascota del propietario.
Mascotas felices: 13 maneras para que disfruten (más) de la casa
Mascotas felices: 13 maneras para que disfruten (más) de la casa
El espacio es versátil y flexible, con la capacidad de privatizar o socializar las áreas según la ocasión, algo particularmente útil para el propietario y sus invitados.
¿Te gustaría ver otra casa de este mismo arquitecto?
¿Te gustaría ver otra casa de este mismo arquitecto?
La losa de la azotea se ha aprovechado para concebir una gran terraza cubierta que sirve de remate visual al patio y como área social complementaria, desde donde se disfrutan totalmente y sin interrupciones las vistas privilegiadas del cerro de la Silla, icono natural de la ciudad.
¿Y TÚ?
¿Qué te ha parecido esta casa? ¿Tienes una mascota? ¿Has adaptado tu vivienda para acomodarla? Cuéntanoslo en la sección de comentarios
¿Y TÚ?
¿Qué te ha parecido esta casa? ¿Tienes una mascota? ¿Has adaptado tu vivienda para acomodarla? Cuéntanoslo en la sección de comentarios





















Quién vive aquí: Un chico joven con su mascota, una perrita
Situación: Monterrey, Nuevo León (México)
Superficie: 321 metros cuadrados
Proyecto: David Pedroza Castañeda, de P+0 Arquitectura
El terreno, con sus características particulares: 12 m de frente y 18 m de profundidad, fue el punto de partida para idear una solución notoriamente sencilla. Por su parte, la fachada principal responde a las exigencias de la topografía, siguiendo una idea aparentemente simple que, sin embargo, requería de una solución arquitectónica complicada.