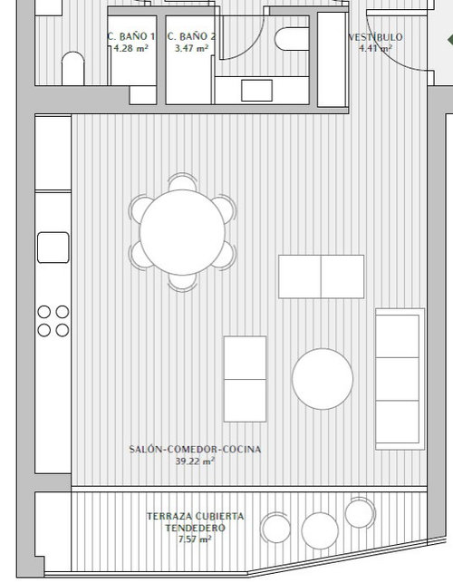
Consulta sobre distribución salón-comedor-cocina
el último mes
última modificación:el último mes
Respuesta destacada
Ordenar por:Más antigua
Comentarios (8)
- el último mes
- el último mes
Conversaciones relacionadas
Necesito ayuda con distribución salón comedor
(9) comentariosHola, preguntas: ¿cuánta gente vive en la casa? ¿no está la tele en el salón porque no la quieres? ¿te gusta cocinar? ¿el budget? el espacio es muy bonito, permite muchas cosas...de toda manera mira nuestras informaciones en el houzz...de cada profesional que te ha contestado, digo, y después creo será más sencillo para ti elegir a quién preguntar. Por ejemplo nosotros tenemos por lo menos 5 o 6 ejemplos, no solo aquí. un saludo...Ver másAgradecería opinión sobre distribución en cocina
(2) comentariosMuchas gracias Cruca Interiorismo por tu aportación. En cuanto a la distribución de la cocina, puedo hacer los cambios que quiera, ya que actualmente está en construcción y estamos definiendo distribución (dentro de las posibilidades) y acabados. Me queda claro que la puerta de la cocina debe estar preferiblemente lo más cercana al comedor y no a la zona del salón. Te comento que la esquina de la cocina que da para el dormitorio (hay una flecha que indica, aunque no se lee muy bien, "ropa sucia"), hemos decidido aprovecharla para abrir un hueco para la ropa sucia (con dos cestos uno arriba y otro abajo para la ropa de color y para la ropa blanca) que tendrá su acceso por el dormitorio (intentaremos que pase lo más desarpercibido posible y que vaya con el resto de la carpintería de la vivienda). La idea es no ocupar los baños con cubos de ropa restando espacio. Por otra parte, la puerta de entrada al dormitorio, como bien dices, la desplazaremos más hacia adentro del dormitorio, ya que enfrente de la puerta de la cocina queremos poner un armario empotrado (para tabla planchar, aspiradora, ...). Te paso algunas fotos de mi idea del hueco para la ropa sucia y del estilo interior que tendrá la vivienda, ya que esto último me lo has preguntado por el tema del gran ventanal de la pared de la cocina que comunica con el salón. En cuanto al uso de taburetes en la cocina, no soy muy partidaria, porque nosotros el desayuno, comida, merienda y cena las hacemos en la cocina y quería poner unas sillas cómodas con respaldo. El uso del comedor será para invitados y momentos muy puntuales. Lo que no he entendido muy bien, y es lo principal, es esto que me has puesto: "Con centrar la puerta de la cocina en la pared donde está, puedes añadir 2-3 módulos de 60 a la derecha que podrían ser frigorífico y columna horno-micro. De esta manera ganas almacenaje y encimera. A continuación de esos módulos cabe la mesa como la tienes o al revés ( una mesa de 90 colocada perpendicular a la pared, con dos taburetes a cada lado)." ¿La mesa no la pondrías dónde está ahora? Gracias por todo de antemano,...Ver másOtra consulta sobre mini salón
(4) comentariosLOLI: Las fotos que acompañas, me informan de que te gusta uno de mis estilos preferidos y amas los colores. Las fotos son necesarias, pero más lo es el PLANO a escala, o croquis a mano alzada con TODAS las medidas. Si no, es como pretender que un médico te diagnostique, a partir de tu aspecto. Le hacen falta analíticas y demás. Decorador sin plano = Indio sin plumas, o como la pena, de tener un reloj sin cadena. Ahora un consejo técnico: Cuando hagas una foto que contenga un área luminosa, como una ventana, la cámara se confunde y cierra de más el objetivo, valorando que hay luz y no es necesario el flash. Mira la diferente calidad de cada foto y repite la 1º, cerrando la luz que entra, o fuerza a que se dispare el flash, cosa que supongo que saben los teléfonos y los que los usan. La FOTOGRAFIA fué antes Técnica & Arte. Ahora para hacer fotos, basta un aparato que se inventó para otra cosa y un dedito que apriete un botón. Esto permite fotógrafos de dos o tres años y yo tengo noticias de una, que hace fotos de toma pan y moja. Confirma que vas a quitar todo lo que hay y partir de cero, o se trata de introducir cambios y aprovechar algunos muebles....Ver másIdeas sobre mejor distribución cocina, salón comedor
(4) comentariosBuenas, un plano más grande habría ayudado a entender mejor la situación. Igualmente dos sofás no son la mejor solución para tu piso. Lo ideal sería un sofá y una butaca, que ocupa menos espacio de paso y visualmente es más liviana. Valora también la posibilidad de poner una mesa plegable de pared o cambiar los herrajes de la cocina y poner una mesa extensible que salga de un módulo. Un diseño aclararía muchas dudas, así que te aconsejo contratar un técnico para que te asesore. Suerte...Ver más- el último mes
- el último mes
- el último mes
- el último mes
- el último mes

Patrocinado
Volver a cargar la página para no volver a ver este anuncio en concreto






epdeco