Hola a todos!!
Es la primera vez que escribo aquí pero la verdad que me estoy volviendo loca con algunas cosas de la reforma de mi hogar y como mucha idea no es que tenga he pensado que quizá me podríais echar una manita :)
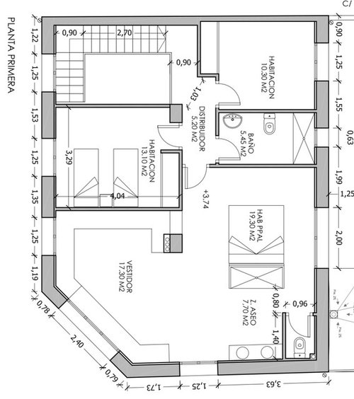
La casa es una casa grande pero muy antigua y requería una reforma para dejarla super chachi!
La principal duda que tengo es en la habitación principal.
Me gustan mucho esas habitaciones que esta el baño integrados en ellas como un elemento diáfano, lo único que no se exactamente como distribuirlo.... la primera idea que tuve es la que os enseño en los planos lo único que no caí en poner una bañera y si que me gustaría tenerla.
También he pensado que quiza detras de la cama están mejor las pilas de las manos que no la ducha... y el espacio para el urinario coger metros del vestidor....
Vosotros como lo distribuiriais?
Os adjunto fotos del plano y fotos que he visto por aquí que me han encantado!
Muchas gracias de antemano!!!
lyte
lyte
Conversaciones relacionadas
Distribución dormitorio principal
Q
Necesito ayuda en distribución piso
Q
Amueblar habitación principal
Q
Decoración habitación principal
Q
Monica Molina
Sara BFAutor original
Ivan J. Hernandez Y.