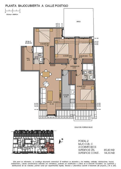
Dime que no te gusta de este plano
hace 6 años
Respuesta destacada
Ordenar por:Más antigua
Comentarios (6)
- hace 6 años
- hace 6 años
Conversaciones relacionadas
Te gusta mas la pintura que el papel pintado?
(14) comentariosEs tan prácticamente infinita la variedad de papeles, que constituyen un recurso de posibilidades ilimitadas. No se debe el cliente emocionar a la vista del rollo. Siempre hay que ir de la mano del decorador. Hay cosas que dicen poco y luego quedan perfectas. Puede uno permitirse lucimiento y cuando un papel queda bien, el resultado es inmejorable. Ahora con la nueva tecnología, incluso se puede simular como va a quedar, haciendo una infografia. De igual manera, pero a la inversa, el papel permite hacer cosas imperdonables, cuando su elección no es acertada. Su mezcla con pintura es indispensable cuando el papel es tan audaz que marca en exceso el protagonismo de un solo muro. En este caso y para elegir la tonalidad adecuada, es más que nunca, necesario el profesional....Ver másBAÑO: ¿Qué combinación de colores te gusta más?
(23) comentariosHola a todos, he votado a el gris, por que es el que mas me convence, pero en realidad no me resulta atractivo ninguno de ellos....Ver más¿Que te parece este diseño y que cambiarias ?
(8) comentariosBuenas tardes, nosotros lo encontramos bastante acertado, nos encanta la combinación blanco/madera que usáis. Es un diseño muy sobrio pero elegante y confortable. Si hay que mirar con detenimiento, quizá le daría la misma tolerancia superior al armario del cabecero con el armario (duele un poco a la vista que haya línea de sombra en la parte superior, y el armario pequeño no la tenga). Lo mismo referente al zócalo inferior del armario, le daría unos 8 cm para que respire, y también para ser prácticos con la limpieza. Por lo demás, perfecto. Iluminación indirecta en el cabezal de la cama, mesitas voladas para no tener la sensación de pesadez. Suerte!...Ver másDECO: El estilo vintage, ¿te gusta o te satura?
(8) comentariosNo sólo es que me guste, sino que creo que el denominado estilo "vintage" es el que debe imperar en una vivienda coherente. Nadie puede pretender ser tan moderno, que no tenga algún anclaje con su pasado, pues todos en gran medida dependemos o somos como somos, por todo aquello que nos ha sucedido antes de ahora. "Que quietas están las cosas y que bien se está con ellas", dijo un poeta. Para los que no tienen claro lo que es este estilo, les concreto que se refiere a la utilización mas o menos abundante de mobiliario, o complementos con más de cincuenta años y menos de cién. Se trata de reciclar objetos heredados, recuperados, que algunos ignorantes tirán o comprados después de buscar afanosa,mente en Almonedas, que son las tiendas donde no suele haber verdaderas antigüedades, ya que para considerarlas así, deben tener más de cien años. La forma de meter en valor y perdón por el galicismo, es juntar estilos para provocar contrastes. Hay piezas que parecen tener alma y que si pudieran narrar lo que han visto, nos provocaríuan muchas emociones. La gracia del "vintage" es que nos puede convertir en eventuales restauradores y si además lo hacemos poniendo mimo o amor, resulta gratificante y divertido. Los muebles artesanales y todo lo que les acompañaba en su época, pueden tener una segunda vida, convenientemente rejuvenecidos, por lo general con simple "cosmética", o sea, cambiando su aspecto externo, su color y textura. Una silla de estilo Luis XV, pintada de color infrecuente y tapizada de forma heterodoxa, puede dar calidez y un toque de glamour, a todo un ambiente. Un mueble serio de madera no muy noble y oscura, puede hacer resaltar y revalorizar un conjunto funcional de muebles suecos de ver y llevar... No digamos de las casas rurales con encanto, que pueden estar totalmente decoradas en clave "vintage" y a ello precisamente deben ese "encanto"....Ver más- hace 6 años
- hace 6 años

Patrocinado
Volver a cargar la página para no volver a ver este anuncio en concreto


User