DISTRIBUCIÓN, CAMBIO DE USO
hace 7 años
Respuesta destacada
Ordenar por:Más antigua
Comentarios (12)
- hace 7 años
Conversaciones relacionadas
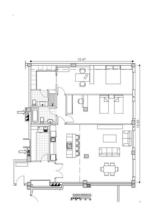
Distribución de un ático de 60 m2
(12) comentariosHola, creo que es todo un acierto en devolverle la terraza a la vivienda, si no necesitas espacios extra, es genial que puedas contar con una terraza para disfrutar y relajarte...Nosotras hemos realizado varios proyectos de rehabilitación de viviendas históricas (proyecto y obra) aquí, en Valencia y creo que le podemos dar una vuelta a la distribución y hacer que sea mucho más funcional y que encaje contigo y tus necesidades. Sin tener mucha más información y sin haber hablado contigo del proyecto creo que tiraría una de las habitaciones y parte de la otra, lo que quedaría de ésta última lo destinaría para un despacho/habitación de invitados; daría la vuelta a algunas de las estancias para colocar el salón-comedor cerca de la terraza y aprovechar la luz, al final es una de las zonas en las que más tiempo pasamos.... Te invito a que eches un vistazo a algunos de nuestros trabajos en nuestro perfil de Houzz y en nuestra web, y si lo deseas, estaremos encantadas de trabajar en el proyecto de tu primera vivienda...Nos encanta buscar nuevas posibilidades a los espacios, dándoles funcionalidad y sin que pierdan su carácter. Un saludo, Verónica II Calatayud A I C...Ver máscambio la distribución del salon
(0) comentariosQuería darle un giro al salón. poner el sofá q adjunto en foto (tono gris perla) en medio del salon, delante del pequeño tabique que hay junto a la ventana. El mueble de la tv y una vitrina en blanco, van en el frontal donde está el cuadro. Mi pregunta es, sabiendo que la distancia entre la pared del mueble de tv y el pequeño tabique, es de 4,60 metros. Cuál sería la distancia ideal para colocar el sofa? detrás como veis tendré la mesa del comedor. Muchas gracias...Ver másCambio distribución salón cocina
(11) comentariosHola Maite, primero decirte que podrías sacarle mucho partido a la casa si la distribución se estudia a fondo. Es una planta muy particular con muchos quiebres, mochetas, planos inclinados que conviene serenar y pulir mediante muebles integrados y otros recursos de diseño. La despensa guardarropa no suele ser una buena idea, ya que juntar ropa de abrigo con trastos y comida no es muy higiénico. Tienes espacio suficiente para diseñar una zona de almacenamiento dividida, con la posibilidad de incluir también un lavadero. Luego apoyándote en las nuevas paredes puedes distribuir una cocina con muebles altos y una gran isla multiuso central y divisoria con el salón. La zona de despacho puede incluir un cerramiento con vidrio para que no sea tan claustrofóbica. También eliminaría la puerta de entrada a la cocina y el largo del despacho lo acortaría para que no se estrangule tanto la zona de mayor circulación de la casa. Así también te llegaría luz natural al pasillo distribuidor. Aunque también necesitarías ajustar la parte de los dormitorios, puesto que están en contacto directo con la puerta de entrada. En fin que cuando hay metros las opciones son múltiples, por eso, sería interesante contar con el proyecto de un profesional para que la inversión esté perfectamente estudiada y ajustada al espacio y al presupuesto....Ver másCrear entrada o cambio distribución
(14) comentariosMe gustaría poner fotos, pero dado lo particular de mi casa, temo que se me reconozca y soy muy mía para Internet. Lo pienso y perder luz en el salón no sería buena idea, por lo que el cristal sería lo mejor (es una planta alta con esta parte orientada al este y el sol entra en diagonal por la cocina). Independizar la cocina, contra la moda actual, me atrae. Lo que sí me vendría bien es poner encimera y muebles bajo el murete, para sustituir la isla (ya que hay una columna maldita en la pared que deja esa pared medio inservible) dejando paso suficiente al balcón, y volviendo a la disposición en L de la cocina (y con el fuego en el lado de la pared, que podría ser de gas ya que está la caldera en el balcón). Lo que ganaría en el salón es poder aprovecharlo hasta el murete, ahora dejo un paso entre el sofá y la isla, quedando de sala los escasos 3 metros de pared de enfrente por los 2,90 desde la tele a la trasera del sofá. Me estoy haciendo un croquis mental con tus ideas tal cual, porque sé que todas son por algo, de eso no me cabe duda. Muchísimas gracias. Edito para añadir: Tal vez esa encimera tras el murete sea tan mínima que tampoco merezca la pena, o pongo dos lineales (¿tal vez el fregadero en el del murete? fuego no, porque no puedo poner la campana ahí) o solo la L y esa pared libre. En caso de que me animara, ¿habría viabilidad de encargarte el diseño y que me lo haga alguien de mi zona (Vizcaya) o cómo sería el tema? Hace unos meses amplié el baño que era enano y tengo que reponer fuerzas antes de hacer nada, pero me gustaría saberlo. Gracias nuevamente...Ver más- hace 7 años
- hace 7 años
- hace 7 años
- hace 7 años
- hace 7 años

Patrocinado
Volver a cargar la página para no volver a ver este anuncio en concreto







Gloria GR