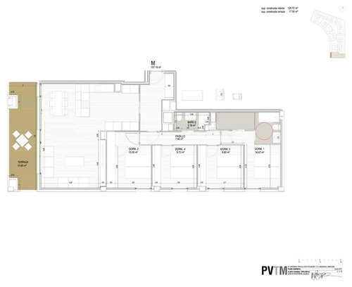
Hola, He adquirido una vivienda sobre plano a la que puedo realizar algunos cambios. El diseño que me proponen en general me encaja salvo 2 cosas; una es la cocina que es un poco estrecha y la otra es que proponen 3 baños cuando con 2 me es suficiente. Para paliar esos problemas, he pensado en quitar un baño que esta a la entrada de la vivienda y juntar cocina y salón creando un espacio mas amplio para la zona de cocina y que además me permite darle mas espacio a una habitación. Hasta aquí tengo mas o menos claro el diseño de lo que quiero, sin embargo, al eliminar el baño de la entrada a la vivienda se me plantea un problema, ya que el baño que quiero eliminar es el único que cumple la normativa de vivienda; que pide que al menos uno de los baños tenga una bañera o ducha con unas medidas de 140 cm × 70 cm y un espacio en el baño en el que se pueda dibujar una circunferencia libre de obstáculos de 120 cm. Ello me obliga a modificar el diseño de los uno de los dos baños que quedan, en concreto, el que esta ubicado en la habitación principal. He pensado en varias ideas aunque ninguna me acaba de convencer y además una de ellas (la que desplazo el baño a una esquina) creo que no se podrá hacer por la distancia a las bajantes y demás. Dicho esto, me estoy volviendo loco dándole vueltas al tema y agradecería enormemente cualquier idea que me podáis dar tanto en el diseño del baño como en general de toda la vivienda. Estoy abierto a cualquier idea. Os paso fotos del plano original y de los cambios que tengo en mente. Muchas gracias de antemano y saludos.
Explicas tan bien tu dilema, que resulta difícil entender la esencia de tu consulta. Seguro que eres joven y universitario. Aquí en HOUZZ, cuando vemos algo aparentemente complicado, pasamos al siguiente consultante. No es el único sitio, donde no funciona hacer bien las cosas. El truco para ser "taquillero", se aprende en libros, o nos lo termina por enseñar la experiencia.
Concretando y para no desanimarte, te diré que me parece que te contestas tu sólo a una pregunta, que no he encontrado, ni en la tercera lectura.
Creo que debes operar a partir de tu último plano.
Hola Gestion Estetica, gracias por tu respuesta. Tal vez no me haya expresado correctamente. Lo que pido por favor es ayuda y consejo en como solventar el problema que me surge por la normativa del baño y cualquier otro comentario/idea sobre la distribucion de la vivienda. Respecto a tu recomendacion sobre el ultimo plano, creo que tal vez sera el menos factible por la distancia que quedaria a las bajantes. No obstante, gracias por tu consejo. Saludos
Pacta con la empresa constructora el tema del baño. Posiblemente sea lo menos ilegal que han realizado. pero a priori no limites el espacio de almacenaje del dormitorio principal, hazlo lo mas amplio posible.
Efectivamente creo que lo tienes claro, pero yo te diría el baño principal del tercer plano lo cambiaría con buena distribución junto con el vestidor integrarlo todo dentro del dormitorio principal, puedes jugar con paneles transparentes para que el espacio no quede reducido. Las bajantes puedes hablar con la constructora y poniendo en la pared frontal bañera wc creo que ganarías espacio. Referente al baño de la entrada yo no lo suprimiría, es importante tener un aseo para cuando tengas visitas y no acceder al resto de la casa si no te interesa. Con un lavabo y un wc seria suficiente la entrada mas grande y los espacios quedan mas integrados.
La cocina yo la distribuiría todo a lo lago de la pared sin hacerle esa ele que corta espacio con una buena isla con taburetes para tener dos lugares diferenciados entre si- Según entras en el salón a tu izquierda pondría todo lo demás sofá quizás cheise-longue etc..
El mobiliario de cocina puede ir en relación la mobiliario del resto del espacio-
Hola Andoni, lo primero agradecer tus comentarios. Tratare de hablar con la constructora para mantener el diseño original del baño de la habitacion principal y ver de que "manera" podemos cumplir con la normativa, no obstante, hasta ahora han demostrado ser bastante inflexibles en otros temas por lo que no soy muy optimista al respecto. Dicho esto, la opcion que menos espacio me quita a la habitacion ( aunque esteticamente no me gusta ese saliente que quedaria a la entrada de la misma) es la que adjunto en la foto. Trataria de poner el lavabo junto a la ducha para una vez obtenida la cedula de habitabilidad centrar el lavabo (incumpliendo la circunferencia de 120 cm) y darlo una distribucion mas logica. Tambien habia pensado en reformar de nuevo el baño (dejarlo como en el plano original propuesto por la constructora) una vez obtenga la cedula de habitabilidad, pero en principio, es la opcion que me menos me gusta. Que te parece la opcion que planteo en el baño? gracias y un saludo
Hola Soledad, te agradezco enormemente el tiempo que me has dedicado. He intentado plasmar en el plano adjunto lo que me has dicho para ver si lo he entendido bien. Disculpa por la calidad del plano pero lo he hecho con el telefono y habra cosas mal pero es para hacerme una idea general. Respecto a mantener el baño de la entrada lo pense como bien dices por el tema de las visitas, pero reflexionando un poco, me di de cuenta de que al cabo del año tampoco recibo muchas visitas por lo que no es un tema critico para mi, ya que cuando invito a alguien a mi casa, es una persona con la que tengo confianza y no me importa que acceda a zonas mas "intimas" de la vivienda. La vivienda que tengo ahora, la enfoque demasiado al que opinaran las visitas y con el tiempo me he dado cuenta de que no vienen tanto y que muchas cosas de las que puse (mobiliario, mesas, sillas, etc) no son nada practicas para el dia a dia y mas ahora que tengo niños. Dicho esto, en caso de prescindir del baño principal como es mi intencion, como lo reenfocarias? Muchas gracias
Eduardo el truco pasa por poner lavabo e inodoro en la pared de la izquierda , dejar tomas en la pared de enfrente de la puerta para cambiar luego el lavabo y hacer mas pequeño ese baño ganarias unos 60 cm o mas en el vestidor.
No se si me he explicado bien.
El cambio lo realizarias una vez tengas las llaves.
Hola Andoni, creo que he captado tu idea. A priori veo como positivo que le gano mas espacio al vestidor, y como incoveniente, que adelanto un poco mas el saliente que produce encajar el plato de ducha de 140 haciendolo coincidir con la pequeña zona de pasillo que tiene la habitacion. Pongo un dibujo para ver si lo interpreto bien. La verdad es que me gusta la idea aunque el baño se quede un poco pequeño y este el tema del saliente. Muchas gracias
Efectivamente si la puerta del baño se puede desplazar que imagino que al estar en obra no tendría que existir problema la ducha según se entra pared de la izquierda wc y dos lavabos frente vestido abierto quizás si me apuras integrado mobiliario de frente de cama para tener mas espacio de almacenaje que es fundamental y si tienes niños lo importante es aprovechar el espacio.
Y referente a cocina abierta en mi perfil tienes un proyecto que es hermosilla donde esta integrada cocina comedor salón por si te apetece echar un vistazo.
Creo que hay que intentar desplazar lo maximo el paquete de baños a la izquierda para ampliar el espacio de dormitorio principal hasta permitir generar un vestidor
Hola Andoni, me gusta tu idea. A partir de lo que me dijistes he conseguido generar un mini-vestidor ( te adjunto foto) aunque sigue sin quedar bien el saliente que genera encajar la ducha de 140. Pero creo que el baño lo tengo bien encaminado. Ahora me esta surgiendo la duda de si dejar el salon-comedor con esa peninsula en forma de L o explorar otro diseño con una isla como en la segunda foto. Que opcion te parece mejor? gracias
Para el tema de la bañera suaviza el tabique rematandolo en curva, no existe normativa que diga que la bañera sea un rectangulo perfecto, Asi todo si no quieres bañera, que te pongan una ducha, y sobre ella sin fijar una bañera de fibra de las mas sencillas, en cuanto te den las llaves la quitas. En cuanto a la cocina hay soluciones diferentes en funcion de tus necesidades, explicame tus necesidades y te busco soluciones. pero como premisa la luz de la ventana debe dar a la mesa del comedor siempre que se pueda por el lado estrecho para que tenga las menos sombras posibles.
Respecto a la cocina podrías probar de poner muebles en toda la pared de entrando a mano derecha y, en medio, una isla que tenga a continuación la mesa de comedor. Como por ejemplo:
O:
O:
Así quedará el espacio más ordenado porque en la versión en "L" te queda un espacio vacío en medio que queda raro.
La otra opción sería la que has puesto la primera vez que te han sugerido el cambio. Quiero decir poner los muebles de pared (ocupando toda la pared), la isla (para ocupar el espacio que te queda vacío, dar superficie de trabajo y separar la mesa del "lío" de la cocina) y poner luego la mesa de comedor. Tendrías que mirar qué cuadra mejor con las dimensiones de tu espacio
Muchas gracias Gloria. La verdad es que coincidimos mucho en los gustos; la 2 ultimas cocinas que has enviado me gustan mucho y las tenia fichadas, especialmente esta que adjunto, me gusta mucho esa combinacion entre el blanco, madera y acero. Respecto al diseño sigo en un dilema aunque empiezan a gustarme mas unos que otros. Tengo tres finalistas; del primero (peninsula) me gusta que queda un poco apartado de lo que es la zona del salon aunque no me gusta el poco espacio de paso que deja hacia el salon, ademas visualmente no me acaba de gustar. El segundo diseño es el que me planteas de poner la isla en paralelo al frente superior y colocar la mesa como continuidad de la isla. Y por ultimo, he pensado en un diseño en el que la isla haga de isla y mesa de comedor a la vez pero sin incluirle zona de fuegos o fregadero ; de este diseño me gusta que es muy ligero visualmente y me da mucho espacio frente a los otros diseños que igual me dan la sensacion de estar todo como muy "metido con calzador" aunque no me hago a la idea de comer en una isla con taburetes ya que aunque no lo he probado, creo que tiene que ser mas comodo y practico en el dia a dia comer en una mesa y sillas mas convencionales en cuanto a altura y comodidad, y mas con dos niños de 3 y 5 años. Como lo veis? mil gracias
La cocina es una maquina para cocinar, piensa mas en su lado practico que en el estetico. Una vez solucionado el concepto practico la ponemos bonita. Piensa en las acciones que realizas en ese espacio y busca un orden y confort.
Hola, He leído la conversación y tras todo lo dicho aportaría que se podría desplazar la puerta de entrada al salón a lado de la del pasillo y así el no se vería directamente la cocina nada más entrar; de esta forma también más diferenciado aunque sea visualmente y si te molestan los olores en un futuro se puede poner una mampara sin excesivos cambios
Yo no haría una mesa de comer con taburetes. Resultan incómodos, tanto para adultos como para niños. La mesa de comer a continuacion de la isla queda muy bien estéticamente pero no sé el conjunto isla más mesa resultará un obstáculo demasiado largo. Yo miraría a ver si las medidas del espacio te permiten poner isla y la mesa paralela a la isla. Creo que es la opción más práctica
Patrocinado
Volver a cargar la página para no volver a ver este anuncio en concreto
User
EduardoAutor original
Conversaciones relacionadas
Ayuda en plano
Q
Ayuda diseño de la cocina
Q
Ayuda: Reforma integral vivienda 55m2
Q
Vivienda de 20 M2 - ayuda distribucion
Q
EduardoAutor original
ANDONI BOLLADA
SR Soledad Ramos
EduardoAutor original
EduardoAutor original
ANDONI BOLLADA
EduardoAutor original
ANDONI BOLLADA
SR Soledad Ramos
ANDONI BOLLADA
EduardoAutor original
ANDONI BOLLADA
Gloria GR
Gloria GR
EduardoAutor original
ANDONI BOLLADA
Studio Cuccine
Gloria GR