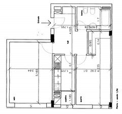
Hola, Paula Según mi opinión, tendrías dos opciones para lograr una habitación con iluminación y ventilación natural: 1. Destinar la cocina a habitación y trasladar la cocina (integrada) hacia alguna de las otras habitaciones
2. Destinar la habitación grande al niño y compatibilizar tu habitación con el uso del salón. No es difícil cuando tienes un rincón como el del vestidor (allí puedes esconder una cama de dos plazas perfectamente).
Espero haberte ayudado y te invito a visitar nuestra página de Facebook (puzzle arquitectura) donde encontrarás ideas prácticas y sencillas para mejorar tu casa.
puzzle arquitectura
puzzle arquitectura
Conversaciones relacionadas
Necesito ayuda con mi dormitorio
Q
Necesito ayuda con mi dormitorio
Q
Necesito ayuda con el dormitorio
Q
Necesito ayuda con mi dormitorio
Q